Wide Bay 2.0 Hip
Wide Bay Architectural Style, Family Focus
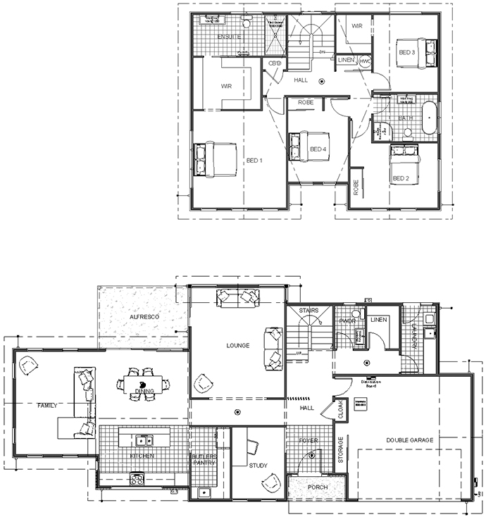
With its softly pitched Hip roof, the Wide Bay presents a warm and inviting faÁade. Inside, the floor plan is designed for comfort and function, featuring a generous living hub and a separate lounge or media room. The four-bedroom layout includes a private master retreat and flexible bedroom spaces to suit family needs.
Sizes(sqm)
4
2
2
2
4
2
2
2
3
2
2
2




