Windsor 2.0 Hip
Windsor Designed for Family Comfort
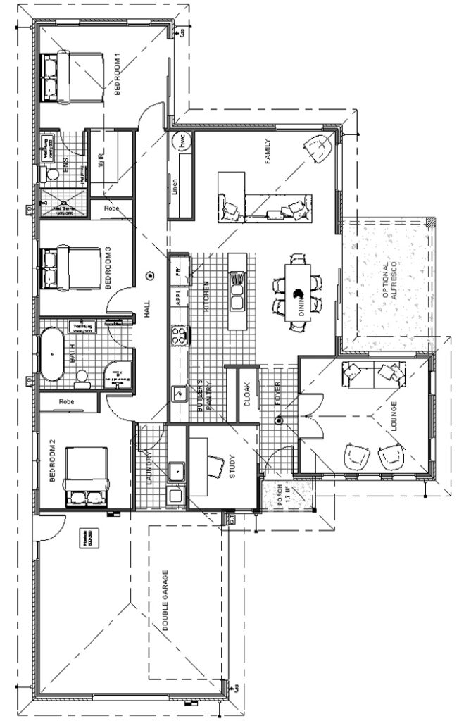
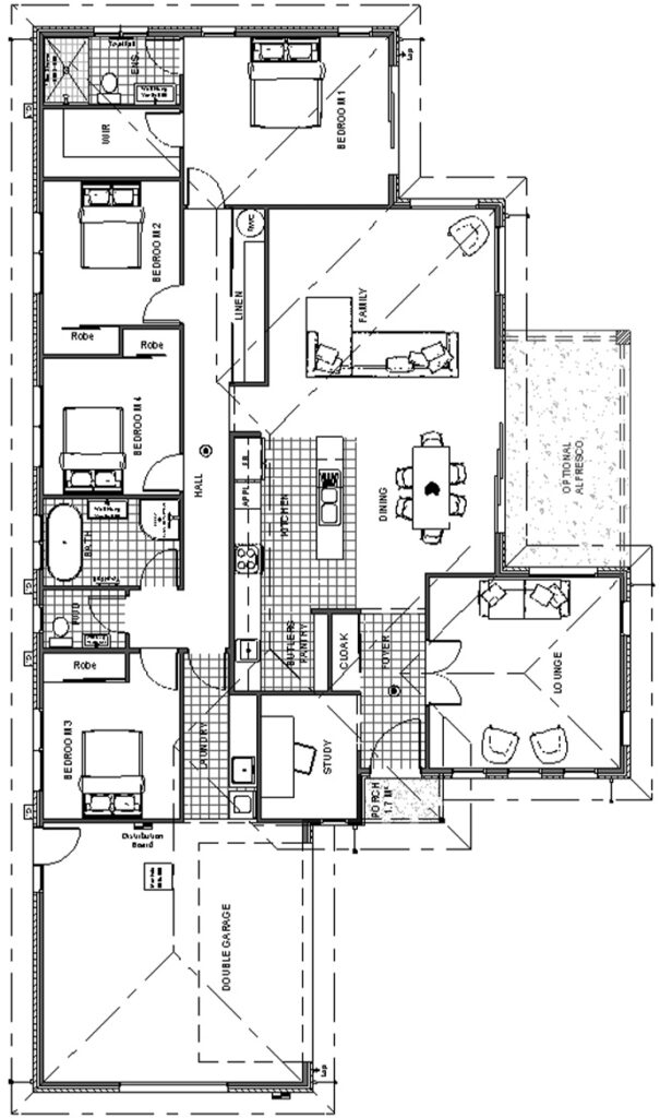
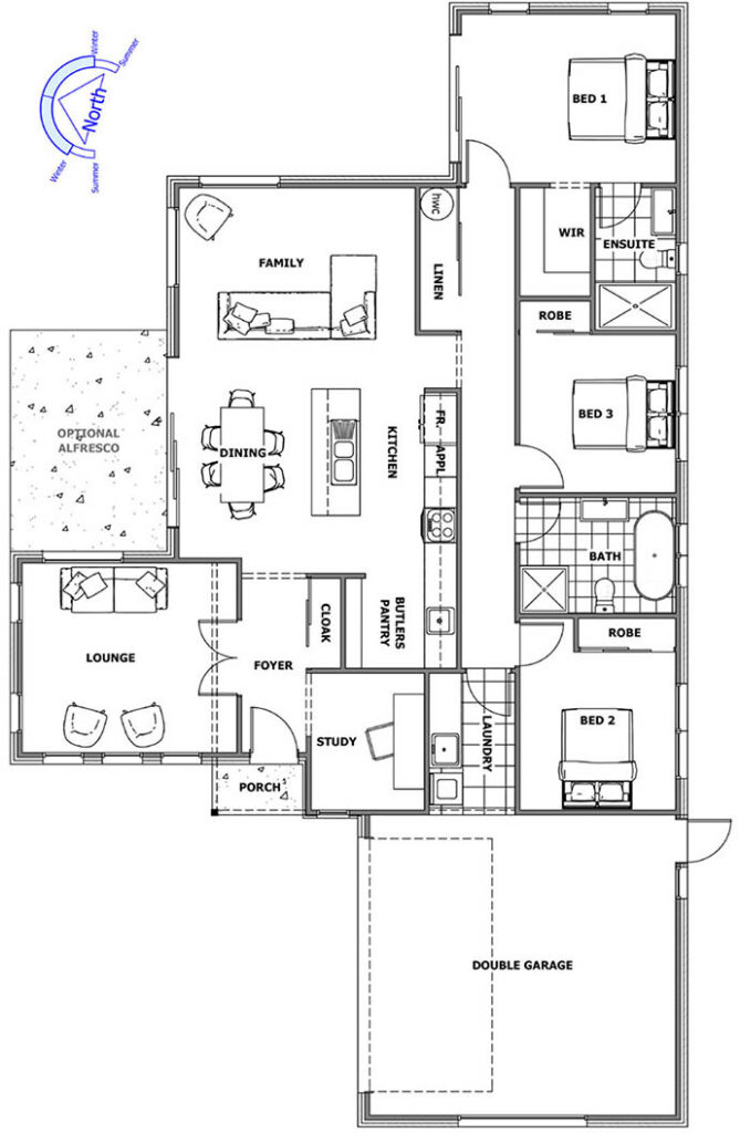
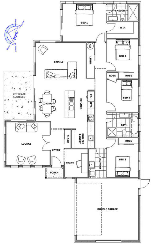
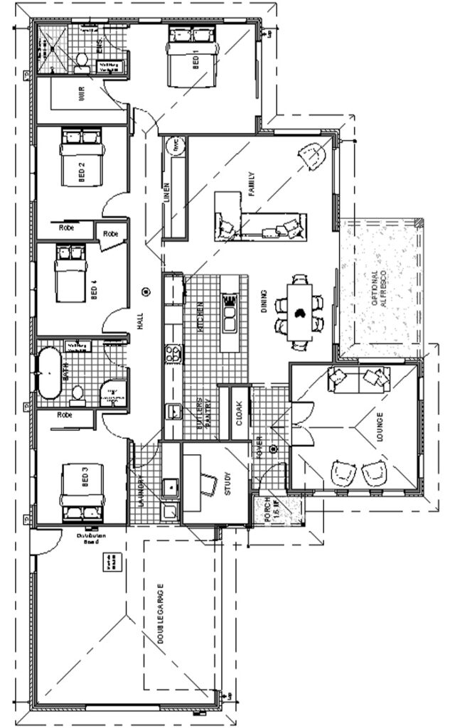
The Windsor Hip Roof plan offers a balanced and elegant four-sided roof design that provides excellent weather protection and a refined exterior look. Inside, the open-plan living areas flow seamlessly, anchored by a contemporary kitchen and adjoining dining and lounge spaces. Four bedrooms, including a master with ensuite and walk-in robe, ensure spacious and private family living. The hip roof adds classic sophistication to this thoughtfully crafted home.
Sizes(sqm)
4
2
1
2
4
2
1
2
3
2
1
2




