Windsor 2.0 Gable
Windsor Designed for Family Comfort
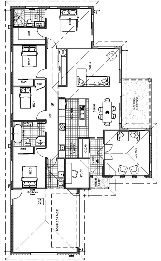
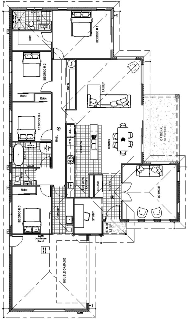
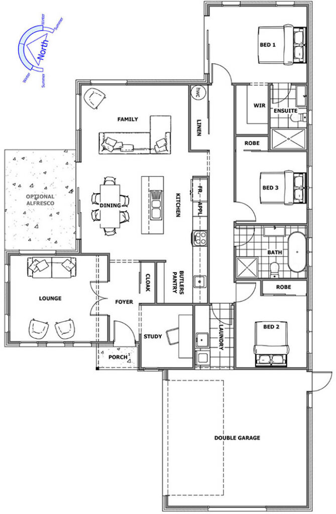
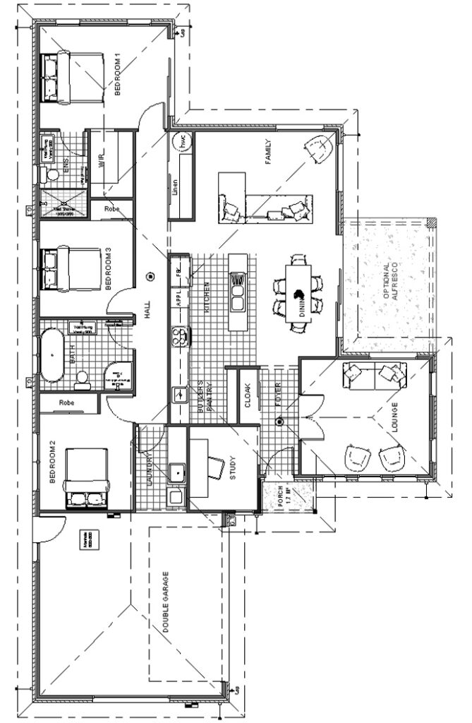
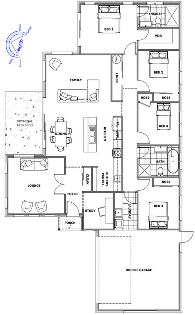
The Windsor Gable Roof plan combines classic charm with spacious, modern living. The pitched roof adds a timeless silhouette and allows for vaulted ceilings, increasing the sense of space in the open-plan kitchen, dining, and lounge areas. Four bedrooms, including a master suite with ensuite and walk-in robe, provide comfort and privacy for families. This design effortlessly blends tradition with todayÃs lifestyle needs.
Sizes(sqm)
4
2
1
2
4
2
1
2
3
2
1
2




