Totara 107 Hip 2.0
Totara Hip Compact Comfort
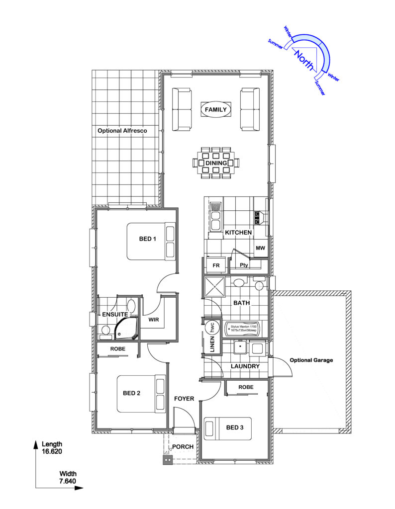
The Totara 107 Hip is a compact 107m home designed for versatility and comfort, featuring a traditional hip roofline for durability and aesthetic appeal. With a living area for relaxation and entertaining, two bathrooms, and an optional garage, this home maximizes space and functionality. The open-plan layout is filled with natural light, creating a spacious feel. Perfect for small families, couples, or as a holiday home, the Totara Hip offers customisable finishes to suit your lifestyle and preferences.
Sizes(sqm)
3
2
1
1




