Beechwood 120 Hip 2.0
Beechwood Hip Compact Comfort with Classic Appeal
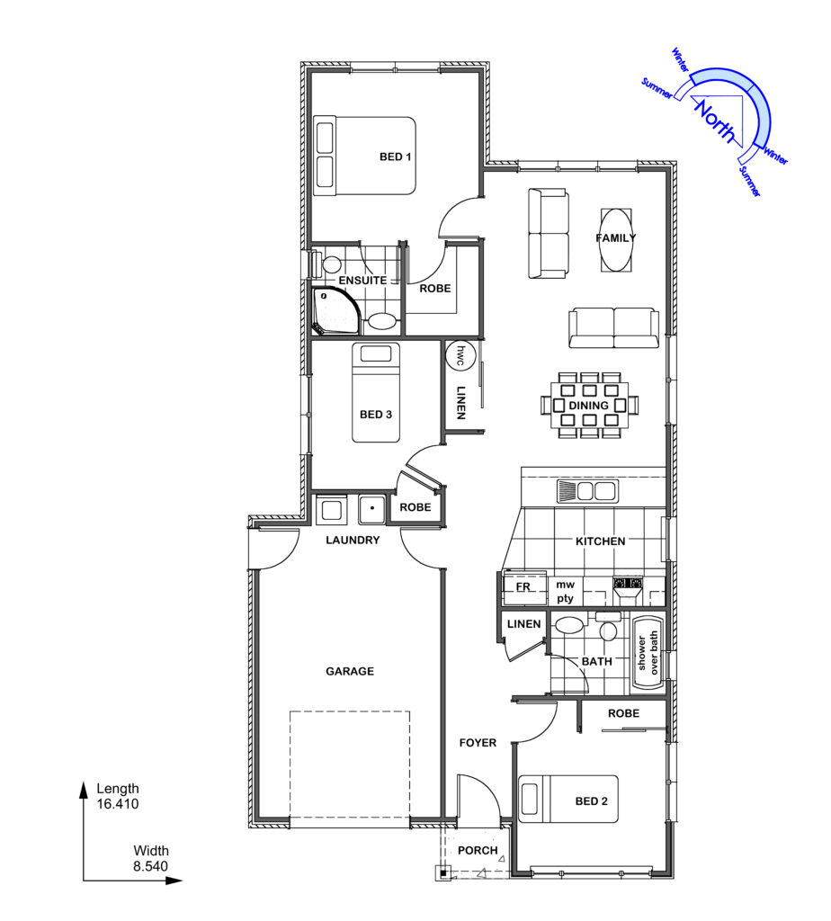
The Beechwood 120 Hip is a modern family home designed for compact sites, offering a timeless hip roofline for durability and aesthetic appeal. The 120m layout features a private master suite with a walk-in robe (WIR) and ensuite, separated from two additional bedrooms to ensure privacy. The open-plan living area enhances the sense of space, while a garage adds practicality. With customisable finishes, this home is ideal for small families or downsizers seeking a blend of classic style and modern functionality.
Sizes(sqm)
3
2
1
1




