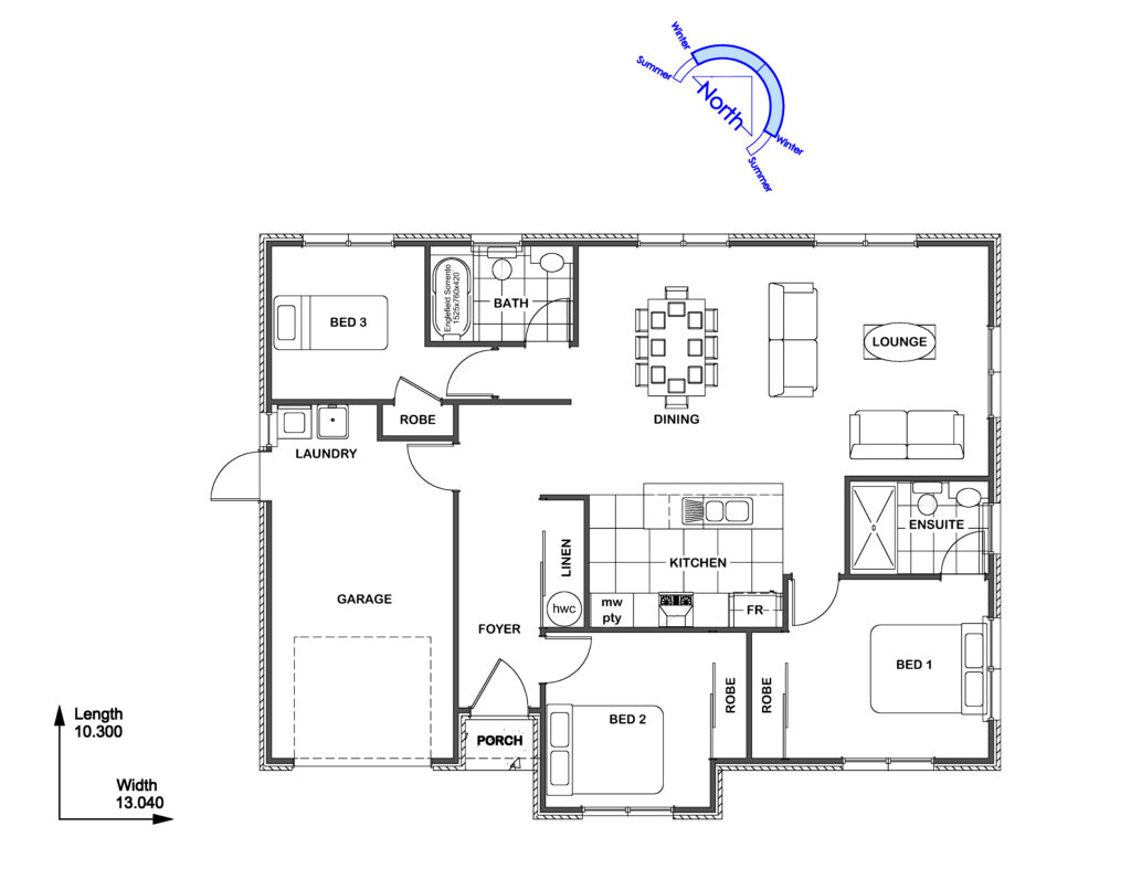
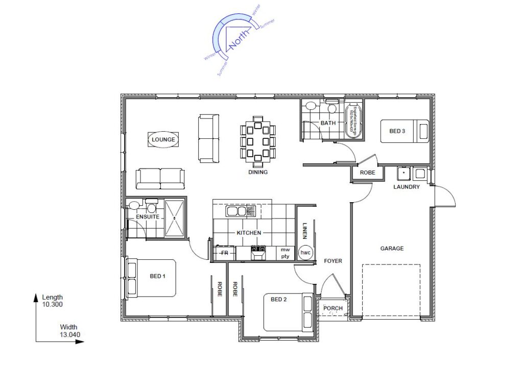
Kowhai 126 Hip 2.0
Kowhai Hip Spacious and Private Family Living
The Kowhai 126 Hip is a thoughtfully designed 126m home that prioritises privacy and space. Its traditional hip roofline offers durability and a classic aesthetic, complementing the light-filled open-plan living area. The master suite, complete with a spacious ensuite, is strategically separated from two additional bedrooms, ensuring privacy for all family members. A garage adds convenience, and customisable finishes allow you to tailor the home to your lifestyle. Perfect for small families or professionals seeking a spacious yet manageable home.
Sizes(sqm)
3
2
1
1




