Kowhai 126 Mono 2.0
Kowhai Mono Modern and Spacious Family Retreat
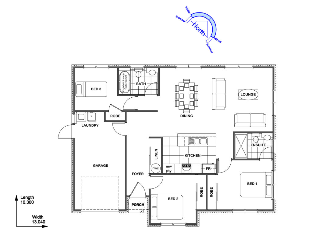
The Kowhai 126 Mono is a modern 126m home designed for compact sites, featuring a striking mono-pitch roofline that adds volume and contemporary flair. The private master suite, with ensuite, is separated from two additional bedrooms, ensuring privacy and comfort. The open-plan living area is bathed in natural light, creating a spacious atmosphere, while a garage provides practicality. Customisable finishes make this home ideal for families or downsizers seeking a bold, modern design with functional living spaces.
Sizes(sqm)
3
2
1
1




