Springwood 2.0 Mono
Springwood Your Perfect Family Home
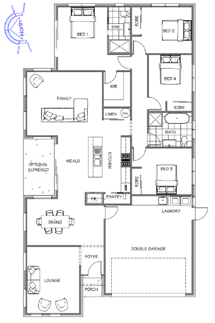
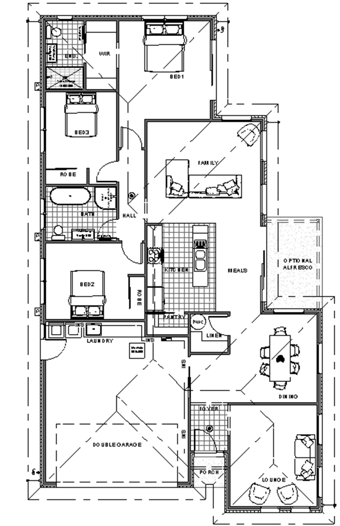
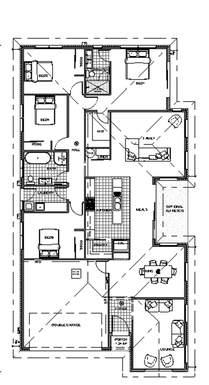
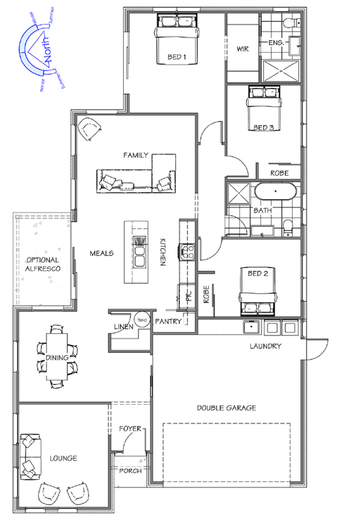
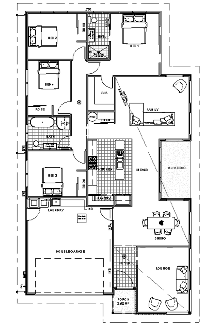
The Springwood Mono Roof plan showcases a sleek, single-slope roof that complements its modern architectural style. This design fills the open-plan kitchen, dining, and living spaces with natural light, creating a bright, welcoming environment perfect for family life and entertaining. Featuring four bedrooms, including a master suite with ensuite and walk-in robe, the layout offers both comfort and privacy. The mono roof enhances the homeÃs streamlined look while supporting energy-efficient living.
Sizes(sqm)
4
2
1
2
3
2
1
2
3
2
1
2




