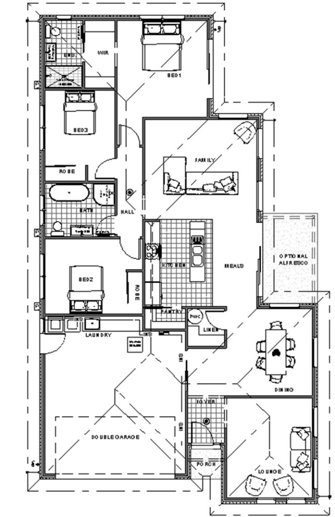
Springwood 2.0 Hip
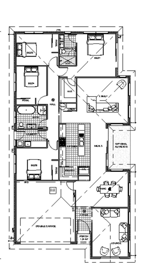
Springwood Your Perfect Family Home
The Springwood Hip Roof plan balances elegance and durability with its four-sided roof design. The open-plan living spaces flow effortlessly, centred around a contemporary kitchen and connected dining and lounge areas. Four bedrooms, including a master suite with ensuite and walk-in robe, provide privacy and room for family living. The hip roof adds a refined, classic touch to this thoughtfully designed home.
Sizes(sqm)
4
2
1
2
4
2
1
2
3
2
1
2




