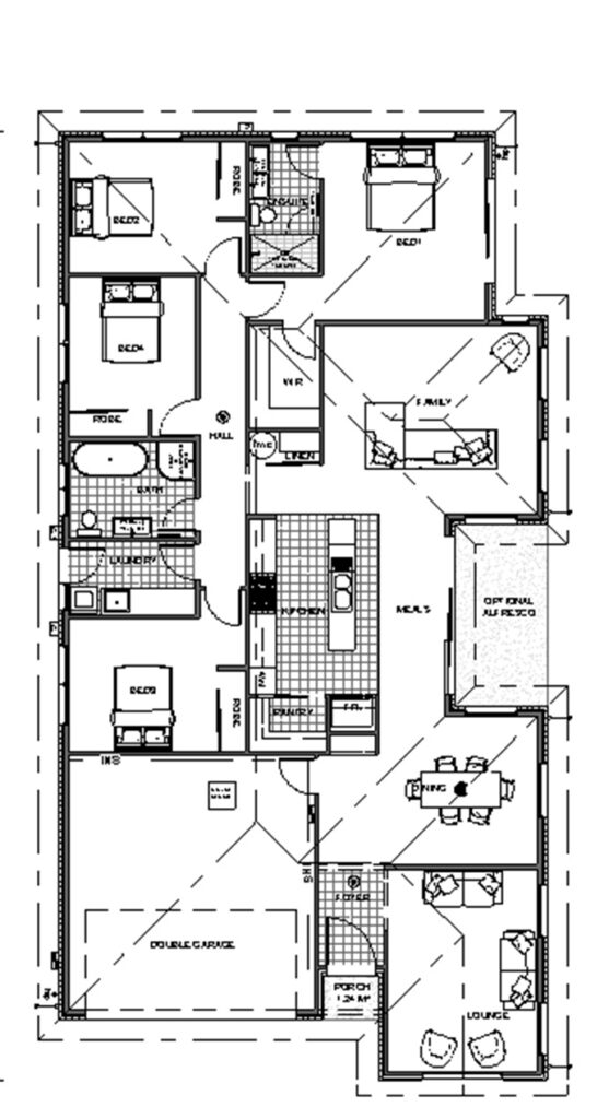
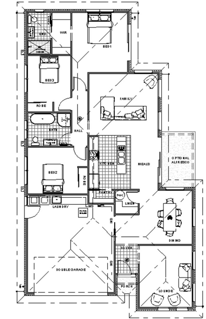
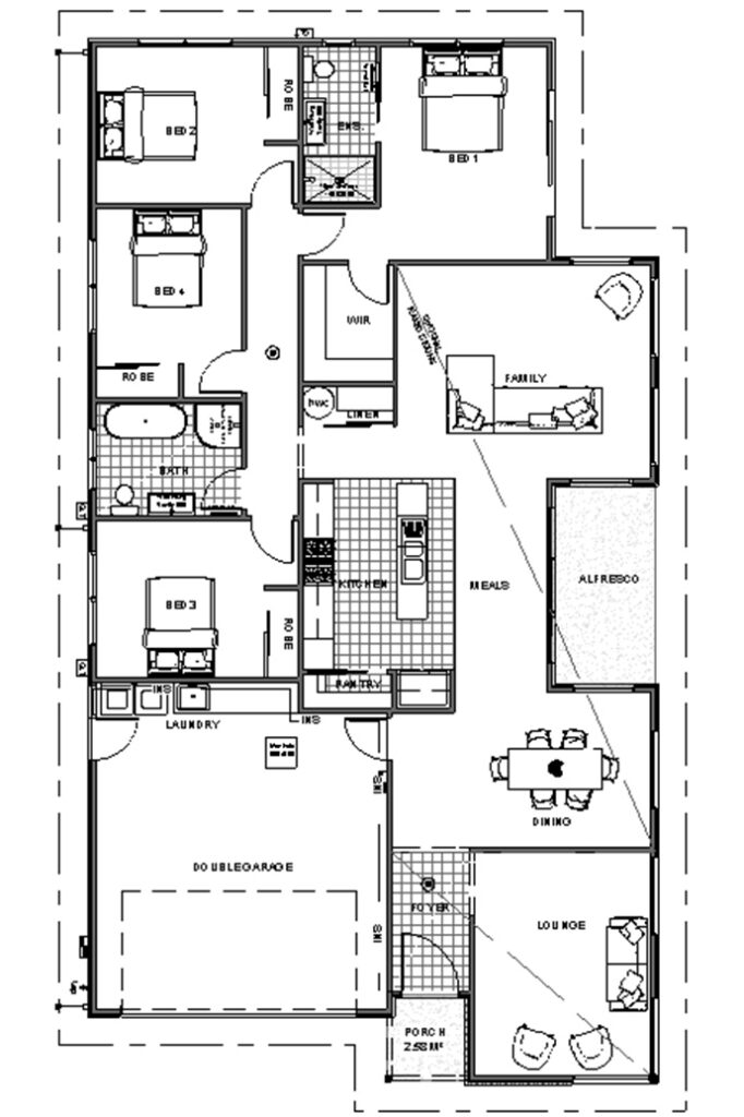
Springwood 2.0 Gable
Springwood Your Perfect Family Home
The Springwood Gable Roof plan features a classic pitched roof that adds character and charm to the homeÃs exterior. Vaulted ceilings inside amplify the spaciousness of the open-plan living, dining, and kitchen areas. Four bedrooms, including a private master suite with ensuite and walk-in robe, offer ample space and comfort for families. This design combines timeless architectural appeal with modern functionality.
Sizes(sqm)
4
2
1
2
4
2
1
2
3
2
1
2




