Seahaven 2.0 Gable
Seahaven Bright, Breezy, and Beautifully Designed
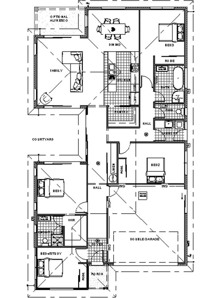
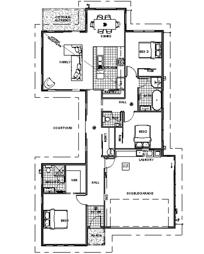
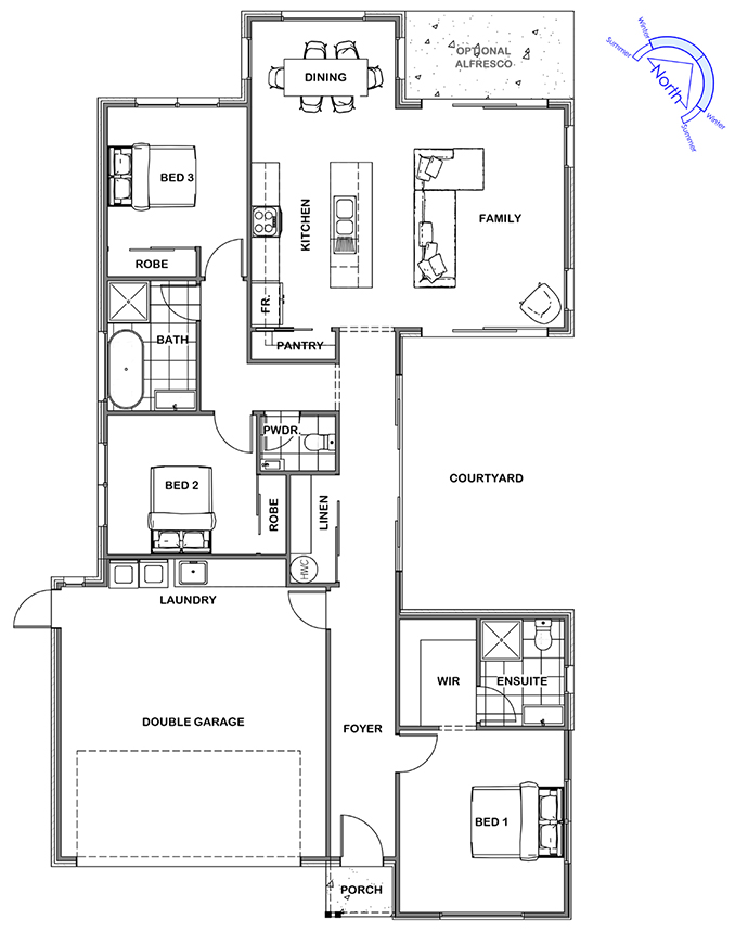
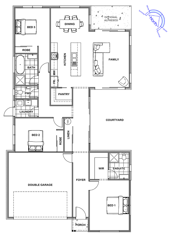
A striking and compact courtyard-styled home, the Seahaven is one of class and sophistication. With 3 4 bedroom options, a separate bathroom and a master suite, this home caters to those seeking the little pleasures. The central courtyard fills the home with an abundance of natural light and makes indoor outdoor entertaining a joy. With the large open plan main living area including a luxurious kitchen with a walk-in pantry, storage is in abundance throughout this home.
Sizes(sqm)
4
2
1
2
3
2
1
2
3
2
1
2




