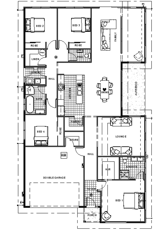
Evoke
Windsor 2.0 Gable
Sizes (sqm)
4
2
1
2
4
2
1
2
3
2
1
2




