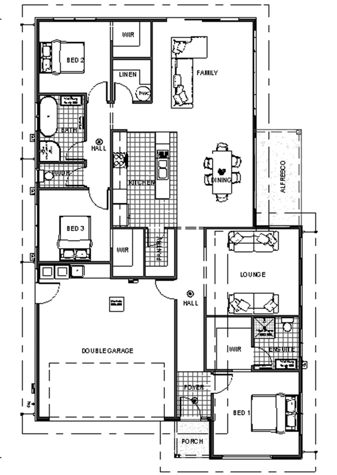
Evoke
Windsor 2.0 Gable
Sizes (sqm)
4
2
1
2
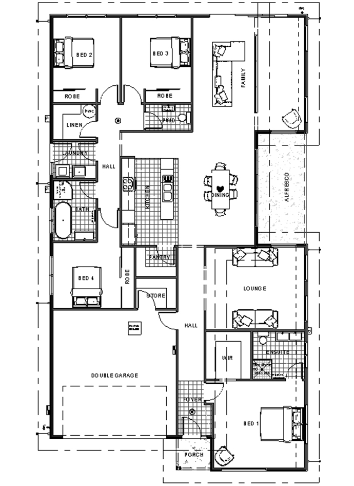
4
2
1
2
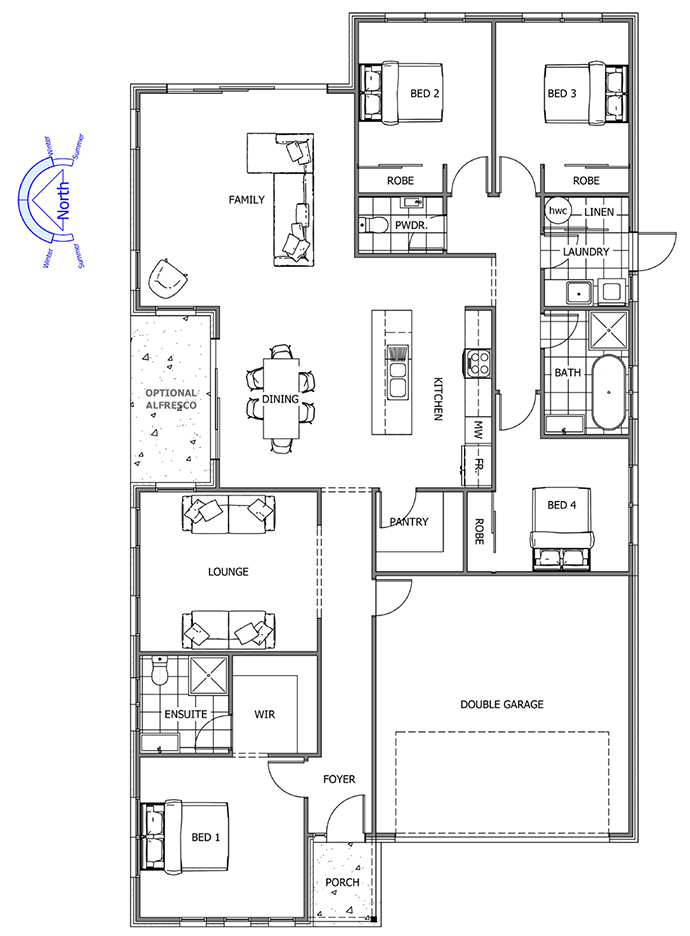
3
2
1
2




