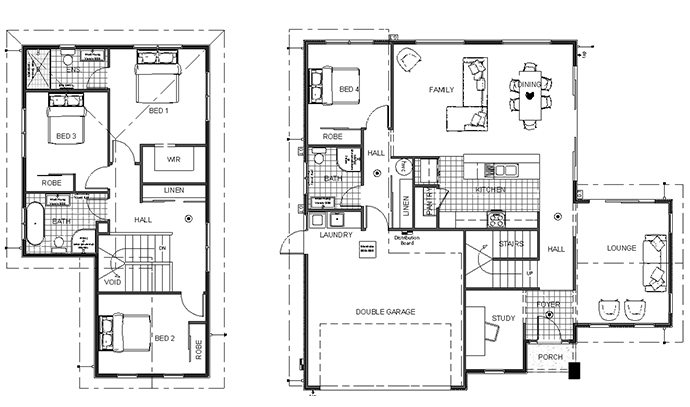
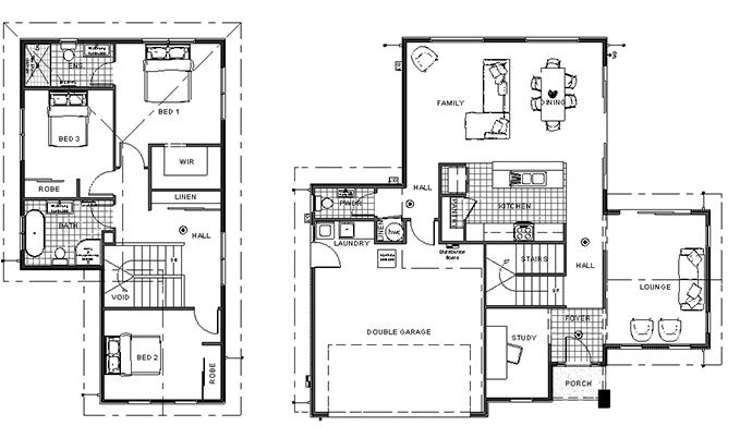
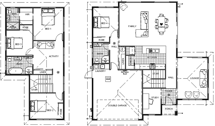
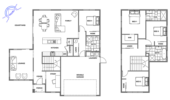
Rutherford 2.0 Mono
Rutherford Where Style Meets Substance
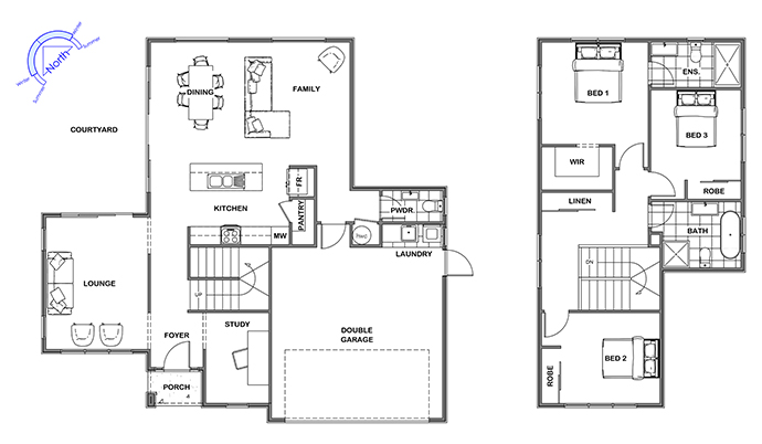
The Rutherford 2.0 Mono features a sleek, contemporary mono-pitch roof that adds modern appeal and maximizes ceiling height. Inside, the home offers an open-plan living, dining, and kitchen area that flows effortlessly to a covered alfresco perfect for entertaining or relaxed family time. The well-designed floor plan includes a private master suite with a generous ensuite and walk-in robe, along with multiple bedrooms grouped around a central activity room and bathroom, providing space and flexibility for the whole family. This design blends practicality with style for today's modern lifestyle.




