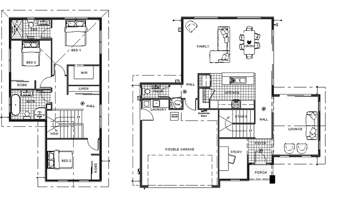
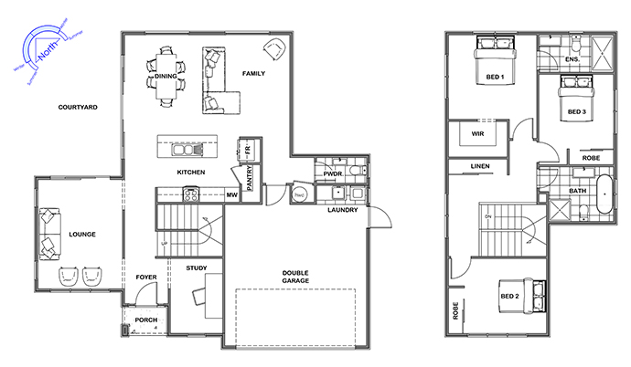
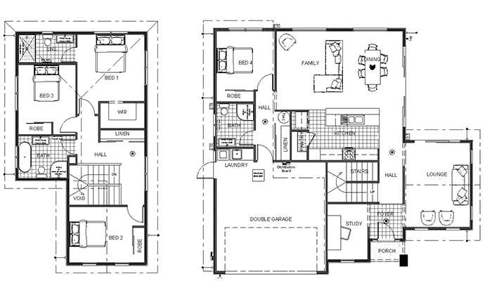
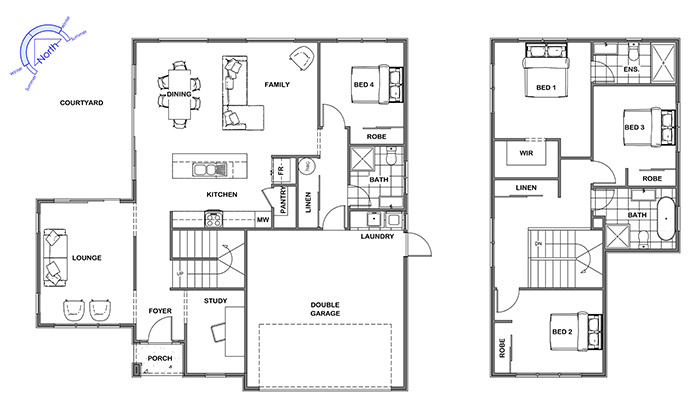
Rutherford 2.0 Hip
Rutherford Where Style Meets Substance
The Rutherford 2.0 Hip offers timeless appeal with its classic hip roof design, perfectly suited to blend into a variety of neighbourhoods. Inside, the well-thought-out floor plan separates social and private spaces, featuring a spacious open-plan kitchen, dining, and living area that flows seamlessly to an outdoor alfresco. The master suite provides a private retreat with a luxurious ensuite and walk-in robe, while the additional bedrooms are grouped around a central activity room and family bathroom, ideal for growing families. Combining enduring style with functional living, the Rutherford 2.0 Hip is designed for comfort and lifestyle flexibility.




