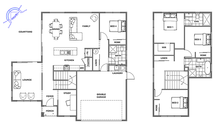
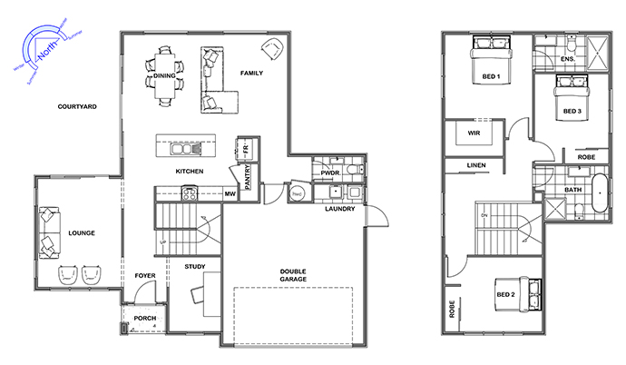
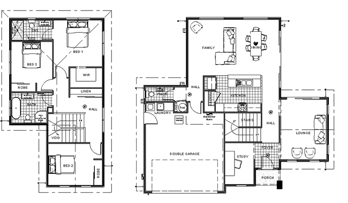
Rutherford 2.0 Gable
Rutherford Where Style Meets Substance
With a focus on designing the ultimate 2-storey home with clean lines surrounded by natural light, the Rutherford has all the features of a luxury home but in a compact and stylish design with space maximised yet still providing privacy for every family member. The open plan main living area captures an abundance of natural light and provides an unmatched entertaining space that will be the talk of the neighbourhood. Discover the design today.
Sizes(sqm)
4
3
2
2
4
3
2
2
3
2.5
2
2




