Renwick 2.0 Hip
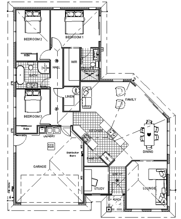
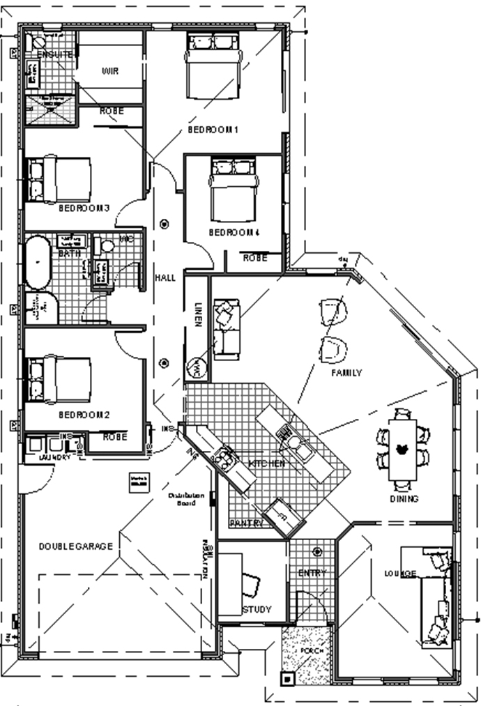
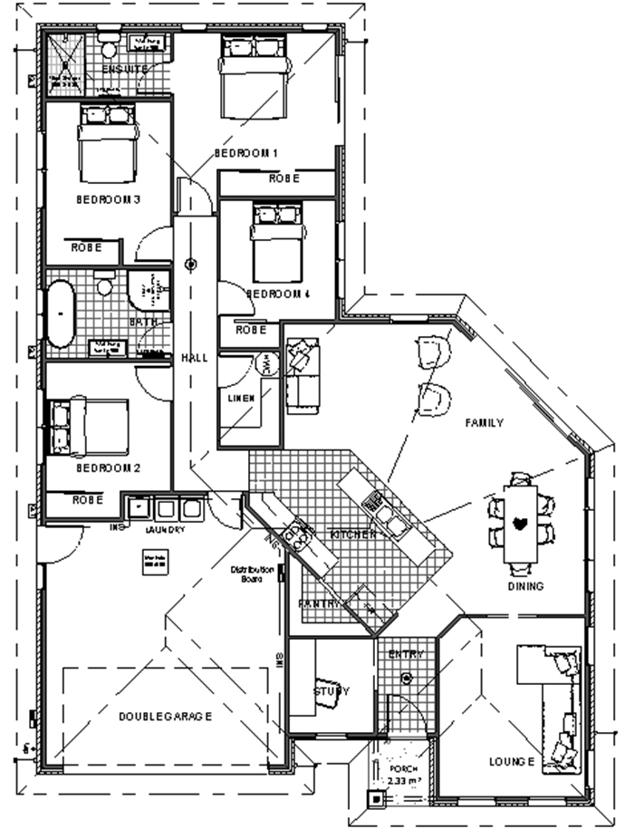
Renwick Modern Living, Timeless Appeal
Radiating out from a modern galley style kitchen with spacious walk-in pantry, you get a sense of space as you walk through to the open plan family and dining area. Compact but clever, nothing is forgotten in the Renwick design. It includes a separate study and lounge room to the front of the home.
Sizes(sqm)
4
2
1
2
4
2
1
2
3
2
1
2




