Pine Grove 91 Hip 2.0
Pine Grove Hip Compact Elegance in 91m
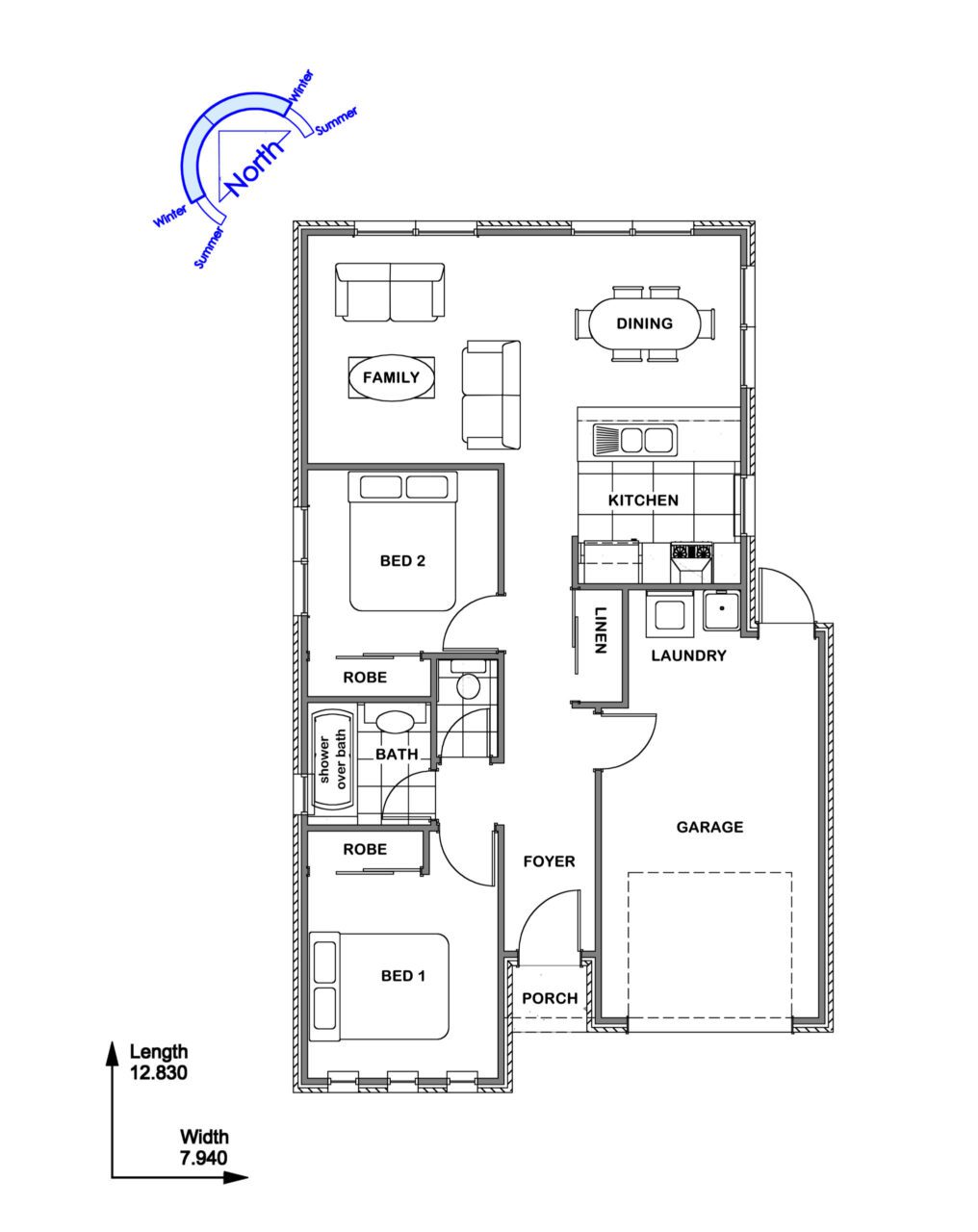
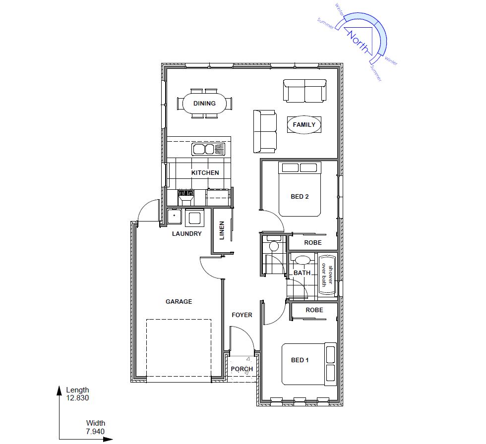
The Pine Grove 91 Hip is a stylish 91m home designed for compact sites, offering a traditional hip roofline for durability and charm. The layout includes two bedrooms, a separate WC, and a garage, ensuring practicality without sacrificing style. The open-plan living area is flooded with natural light, enhancing the sense of space. Perfect for couples, downsizers, or holiday home buyers, this home offers customisable finishes to create a personalized retreat that blends efficiency with classic elegance.
Sizes(sqm)
2
1
1
1




