Pavillion 2.0 Gable
Pavillion Modern Open Living
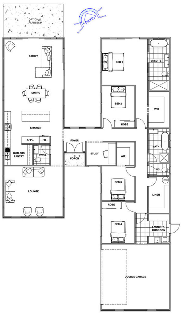
The Pavillion 2.0 Gable features a soaring gable roof design that delivers a balanced, timeless look, blending effortlessly into a variety of neighbourhoods. The interior layout focuses on well-zoned living spaces with a clear separation between social and private areas. The open-plan kitchen and living zones extend to an alfresco, ideal for casual dining and gatherings. The master suite is thoughtfully positioned for privacy and boasts a luxurious ensuite and walk-in robe. Three additional bedrooms are grouped around a shared bathroom and activity room, providing plenty of space for family growth and lifestyle flexibility.




