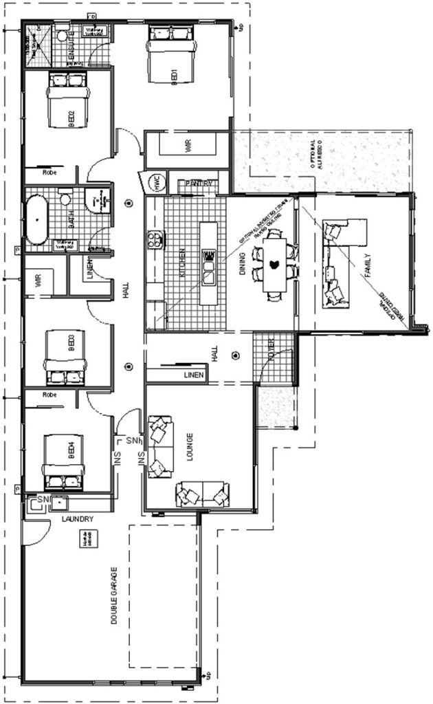
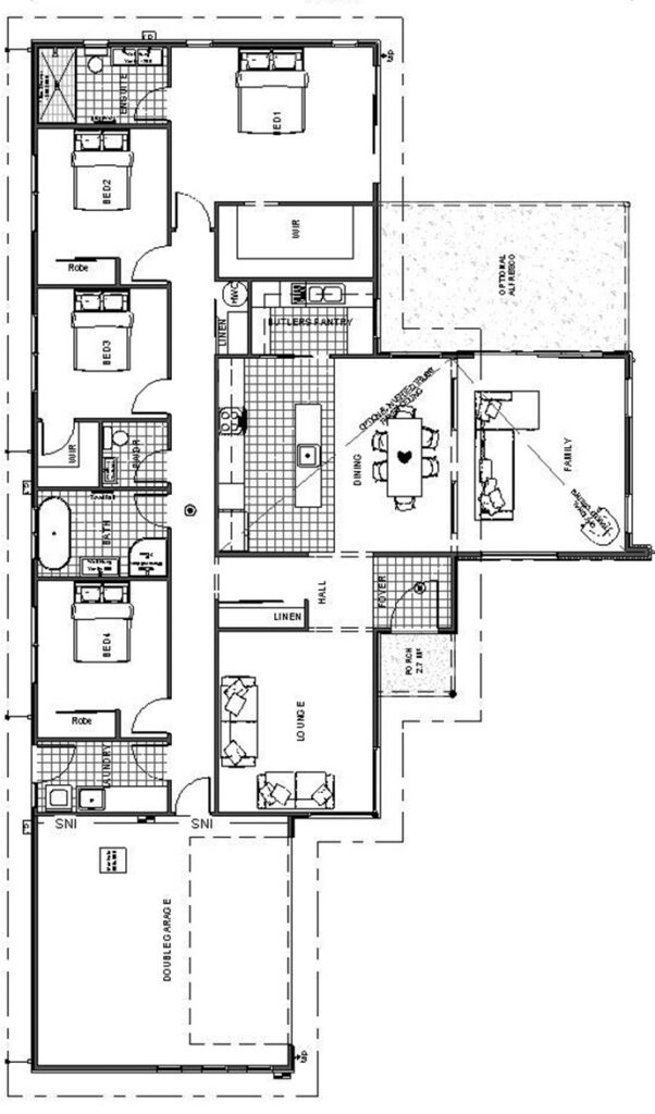
Outlook 2.0 Hip
Outlook Designed for Views, Built for Living
This refreshed version of a Stonewood favourite features a timeless gable faÁade and a floorplan designed to maximise outlook and natural light. Open-plan living connects effortlessly to the outdoors, while well-zoned bedrooms and flexible spaces make it perfect for growing families or relaxed living.
Sizes(sqm)
4
2
1
2
4
2
1
2
3
2
1
2




