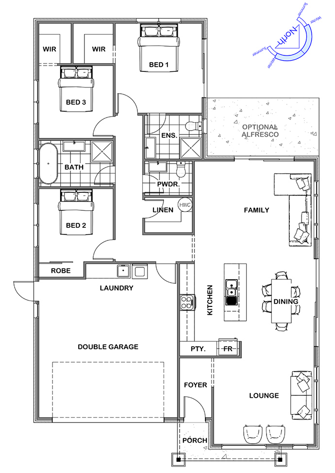
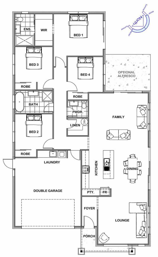
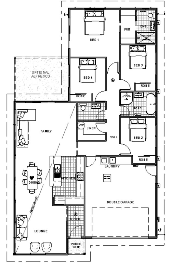
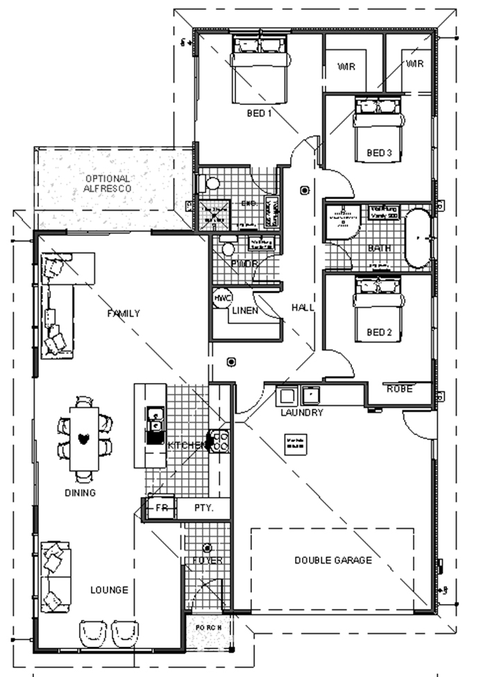
Northridge 2.0 Gable
Northridge Elevated Living, Exceptional Design
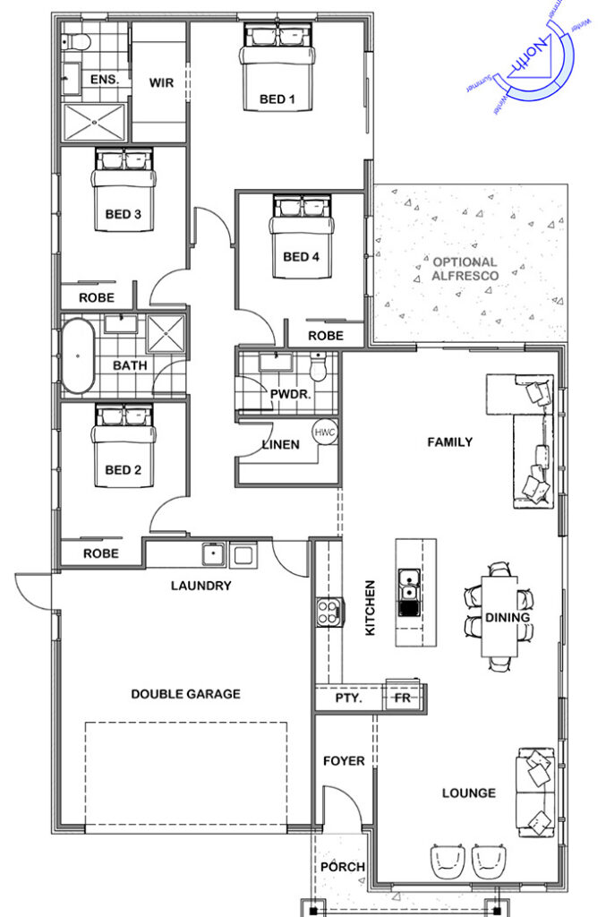
A house with the wow factor, both inside and out. From the modern edgy facade to the crisp clean lines of the layout, this home is designed to capture the sun all day long. The design encompasses a large, sunny open plan family and dining area, generous lounge to the front.
Sizes(sqm)
4
2
1
2
4
2
1
2
3
2
1
2




