Norfolk 2.0 Hip
Norfolk Elegance and Function Align
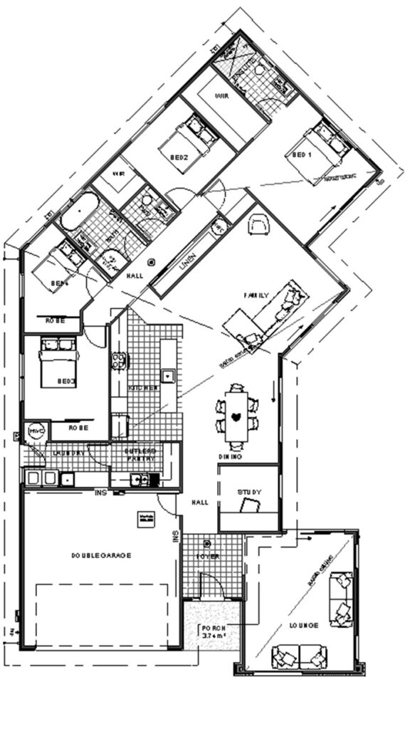
This Norfolk design uses clean lines, striking facades and a feature angle articulation to create a private courtyard for effortless indoor outdoor flow. Inside, the angled walls maximise the warmth of the natural light provided by the abundance of glazed windows surrounding you.
Sizes(sqm)
4
2
1
2
4
2
1
2
3
2
1
2




