Montrose 2.0 Hip
Montrose Bold in Design, Effortless in Flow
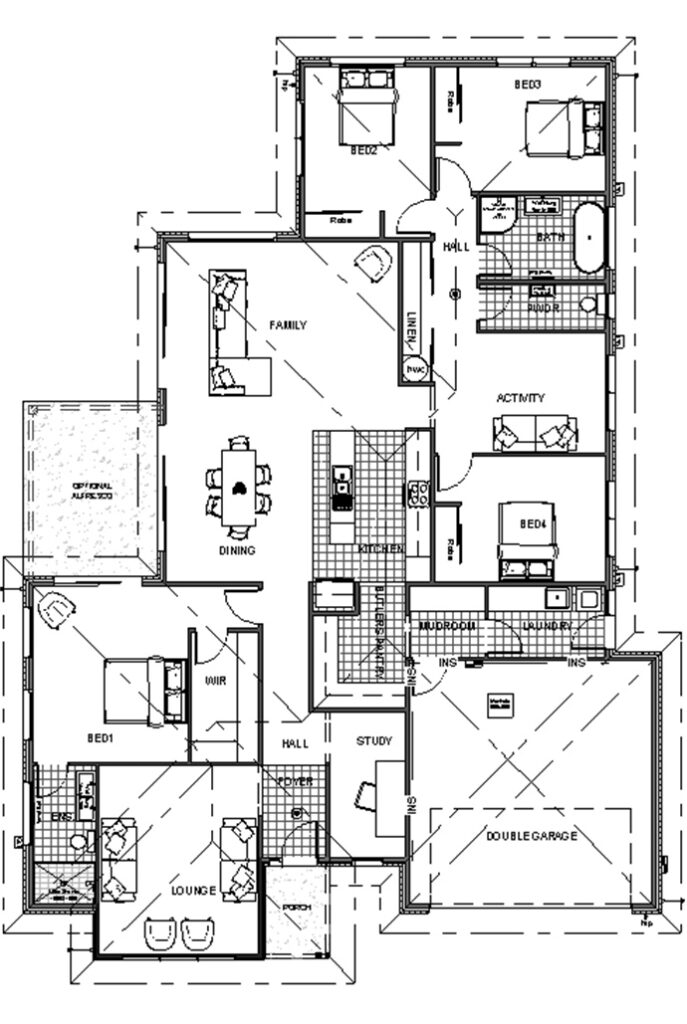
The Montrose is the ultimate crowd pleaser, combining an abundance of space and family friendly features, with sophisticated private zones. A large lounge and study at the front hides a spacious master suite tucked in behind for the ultimate in privacy. You will enjoy a large galley kitchen and butler pantry, with a laundry and mudroom flowing off the garage. Combined with the huge open plan main living area that catches an abundance of natural light, everyday living has never been so enjoyable. To the rear are the remaining bedrooms and family bathroom wrap this family package together.




