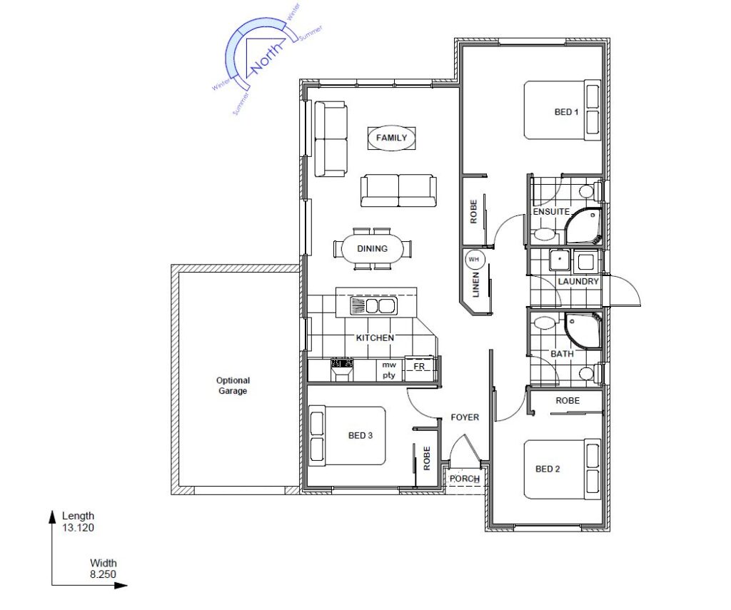
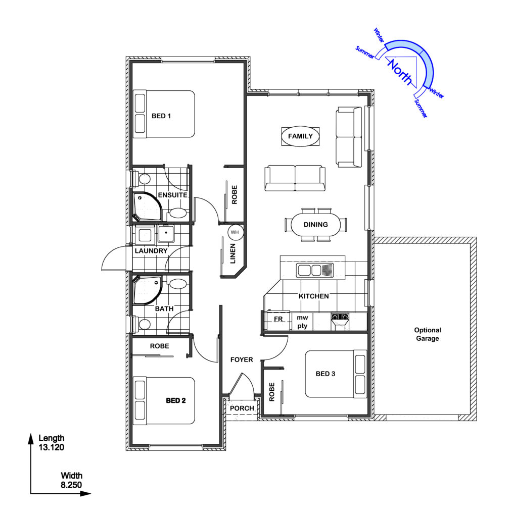
Manuka 99 Gable 2.0
Manuka Gable Compact Comfort with Big Features
The Manuka 99 Gable is a cleverly designed 99m home that maximises space and functionality. Featuring a timeless gable roofline, this home includes three bedrooms, two bathrooms, and a separate laundry for convenience. The optional garage adds flexibility, while the open-plan living area enhances the sense of space with natural light. Ideal for couples, small families, or holiday home buyers, this design offers customisable finishes to reflect your personal style, blending practicality with classic charm.
Sizes(sqm)
3
2
1
1




