Longbeach 2.0 Gable
Longbeach Coastal Charm, Everyday Comfort
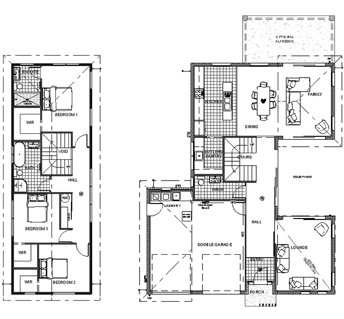
There is an abundance of light and style everywhere you look in this two storey family home. Downstairs you enter the generous foyer, and a sense of space immediately washes over you. From the huge front lounge room to the light filled gallery that creates a seamless indoor, outdoor flow. The impressive main living areas to the rear are serviced by a designer kitchen with flow through to a butler pantry for the true entertainer at heart.
Sizes(sqm)
5
3
2
2
4
3
2
2
3
2
2
2




