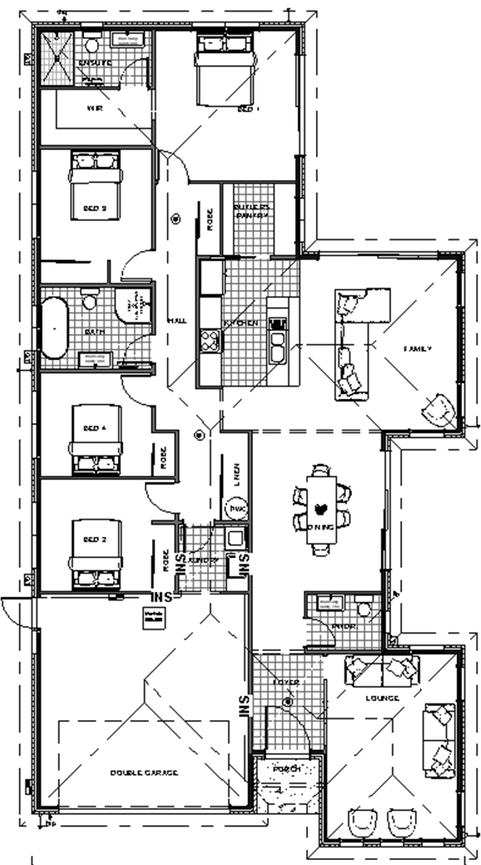
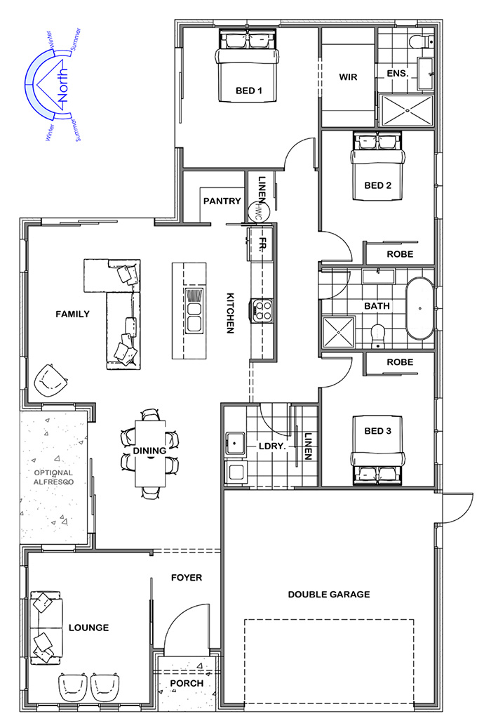
Linkwater 2.0 Mono
The Linkwater Smart Spaces, Seamless Living
With its clean lines and modern street appeal, the Linkwater Mono is ideal for those who love simplicity with a contemporary edge. The mono-pitch roof gives the home a sleek silhouette, while the interior offers an efficient layout with open-plan living, well-zoned bedrooms, and plenty of natural light. Perfect for compact sections or those seeking a modern statement.
Sizes(sqm)
4
2
1
2
4
2
1
2
3
2
1
2



