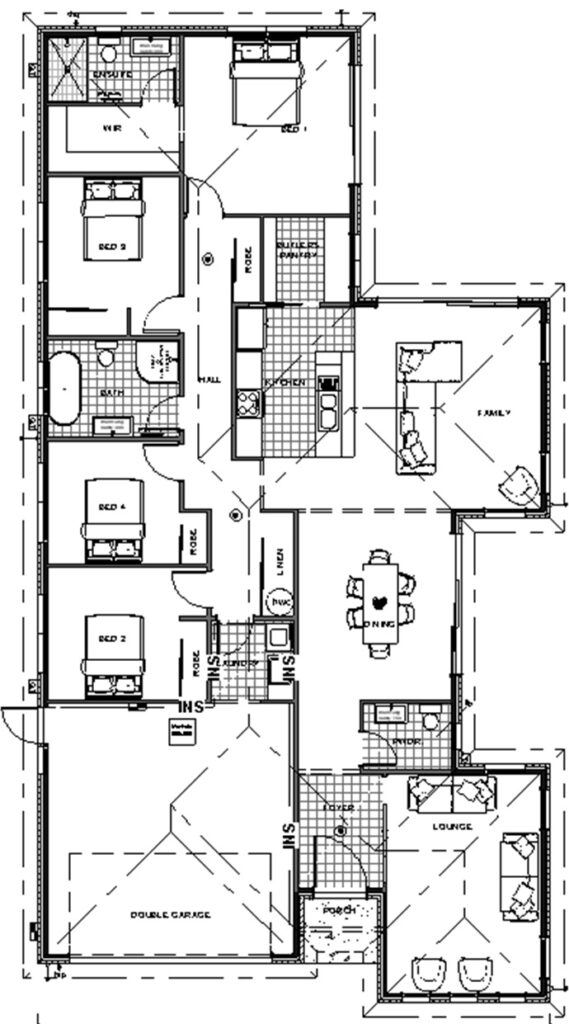
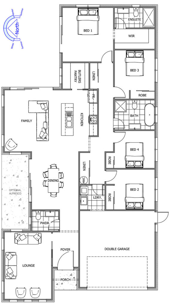
Linkwater 2.0 Gable
The Linkwater Smart Spaces, Seamless Living
The Linkwater Gable combines architectural character with everyday practicality. The classic gable faÁade adds depth and definition, while inside, the open-plan living spaces flow effortlessly to the outdoors. A central kitchen anchors the home, and the thoughtful layout ensures both connection and privacy, making it a versatile choice for a range of lifestyles.
Sizes(sqm)
4
2
1
2
4
2
1
2
3
2
1
2




