Lakeview 2.0 Gable
Lakeview Bold Lines, Spacious Vibe
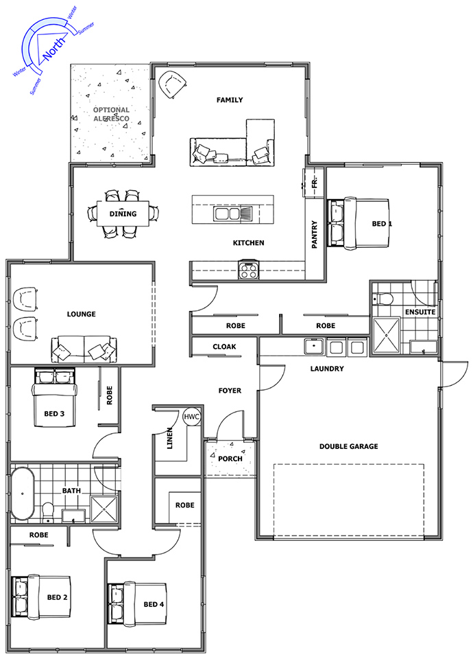
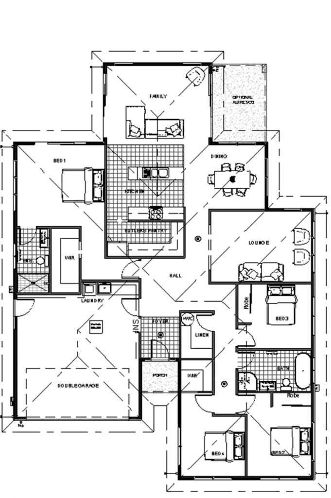
The Lakeview Gable is a beautiful home, an entertainer's dream, with two adjoining living areas, separate dining area and luxurious kitchen all perfectly positioned to capture the sun. A master suite including generous sized robe space and ensuite, is zoned separate to create the ultimate in privacy and luxury. With 3 or 4 bedroom options for this home, this is one feature packed design.
Sizes(sqm)
4
2
1
2
4
2
1
2
3
2
1
2




