Inglewood 2.0 Gable
Inglewood Sleek Form, Smart Function
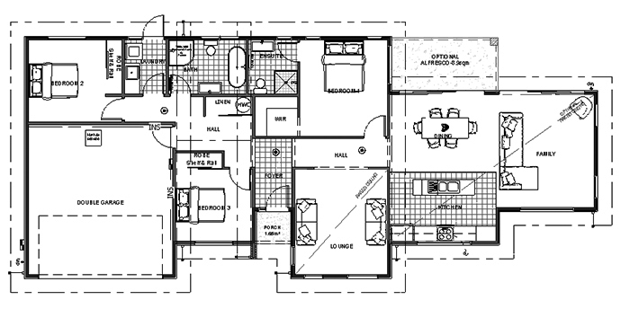
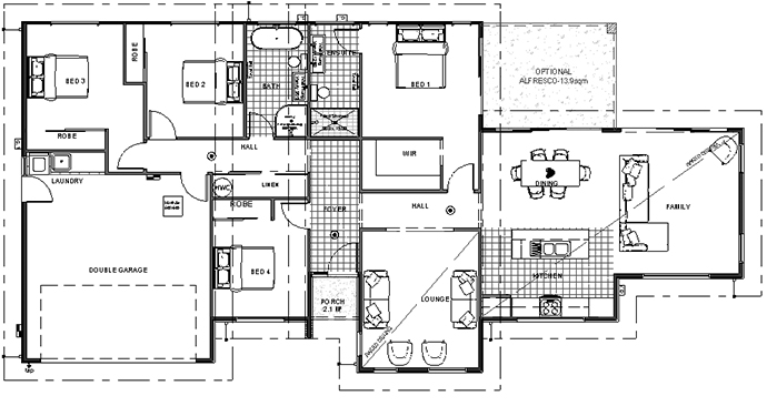
This expansive Inglewood modern family home is zoned for easy living and practicality for the growing family. There are 3 4 bedrooms complete with bathroom and laundry on one side, including a master suite complete with its own spacious walk-in wardrobe and ensuite. The living zone features a large lounge for entertaining, and huge open plan main living area flowing from a modern galley kitchen and huge butler pantry ensuring entertaining is a breeze.
Sizes(sqm)
4
2
1
2
4
2
1
2
3
2
1
2



