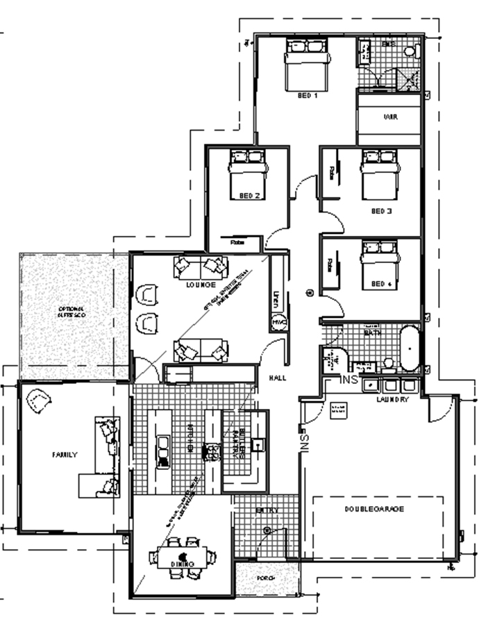
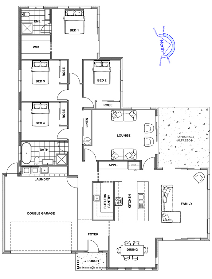
Glengarry 2.0 Gable
Glengarry Classic Comfort, Timeless Style
From the commanding street presence to the ample living zones, this is an impressive family home with space and privacy for all. Enjoy light filled living and dining areas that flow from a galley kitchen with butler pantry to the rear. Storage is in abundance in this home, and you make the call to enjoy a separate formal lounge or media room.
Sizes(sqm)
4
2
1
2
4
2
1
2
3
2
1
2




