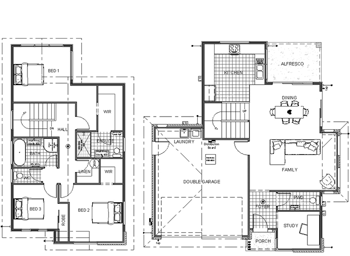
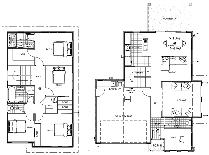
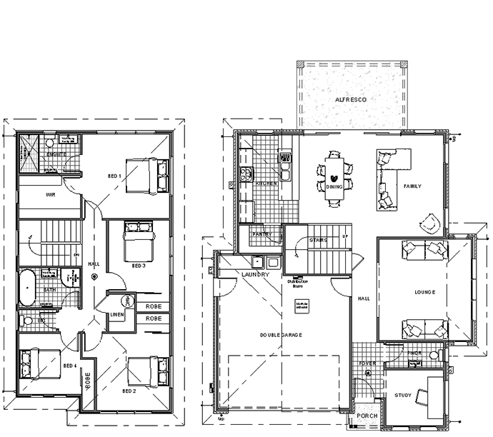
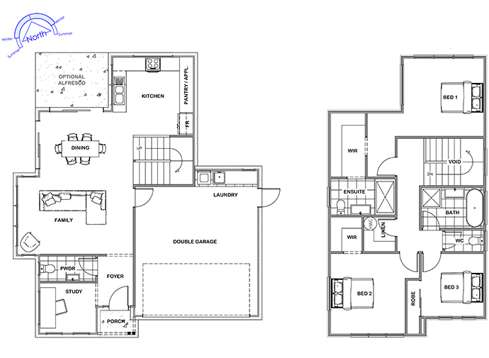
Gladstone 2.0 Mono
Gladston Heritage Charm, Modern Living
The Gladstone 2.0 Mono pairs a sleek mono-pitch roof with classic design elements for a fresh, updated look. This home offers spacious, well-zoned living areas that flow effortlessly to the outdoors, creating a perfect balance of tradition and contemporary comfort. Ideal for families seeking style and practicality in one package.
Sizes(sqm)
4
2
2
2
4
2
2
2
3
2
2
2




