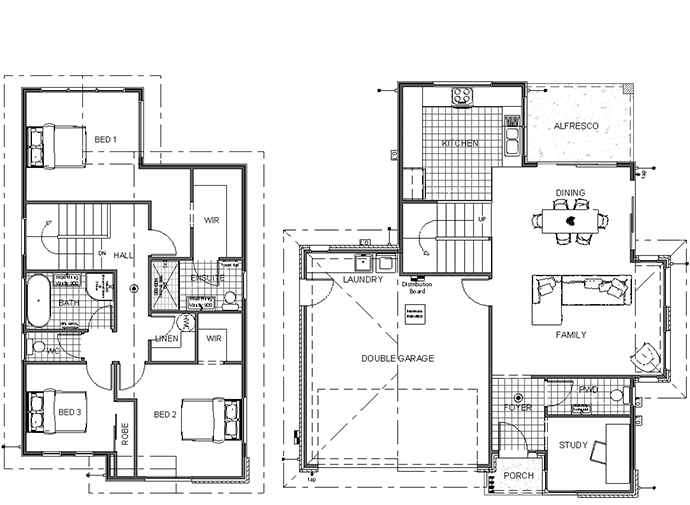
Gladstone 2.0 Hip
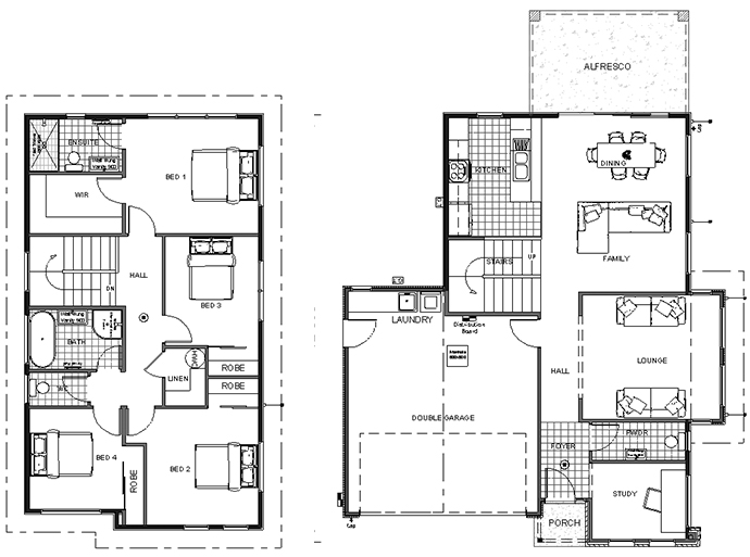
Gladston Heritage Charm, Modern Living
This Gladstone is a value-packed family home, big on style and great for those compact sites. With an open study flowing off the foyer, to the open plan lounge and main living area to the rear, the layout of this design is all about catching natural light and feeling as open as possible.
Sizes(sqm)
4
2
2
2
4
2
2
2
3
2
2
2




