Fairhill 2.0 Mono
Fairhill Timeless Appeal, Everyday Ease
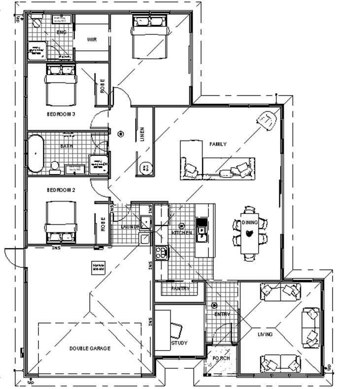
The Mono roof lends a contemporary feel with a clean, single-plane profile. Inside, the expansive open-plan living and kitchen form the heart of the home, with seamless indoor-outdoor flow. A separate lounge offers a quiet retreat, while four bedrooms, including a rear master with ensuite and walk-in robe, provide space and privacy for the whole family.
Sizes(sqm)
4
2
1
2
4
2
1
2
3
2
1
2




