Chadwick 2.0 Hip
Chadwick Elevated Living, Inspired Design
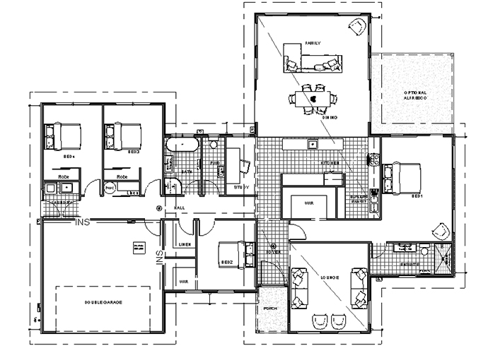
You can be as sociable or as private as you like in the Chadwick, a generous family home. The moment you step through the foyer, you are greeted by a large sun-soaked lounge room. With a huge master suite and all the trimmings located privately off the foyer away from the remaining bedrooms, it is the perfect parent's retreat. With the large open plan main living area flowing onto a kitchen with spacious butler pantry to hide away all the mess, entertaining is effortless.
Sizes(sqm)
4
2
1
2
4
2
1
2
3
2
1
2




