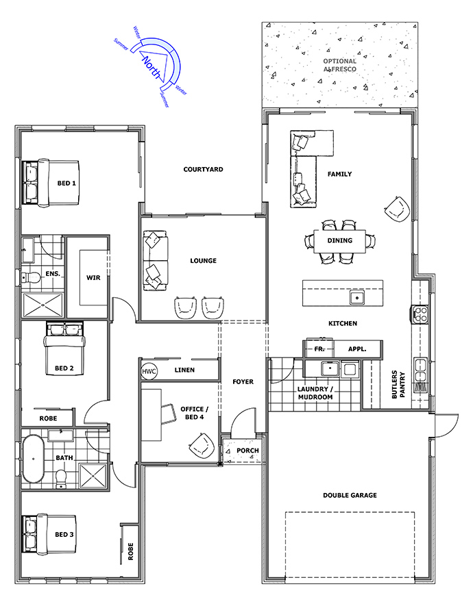
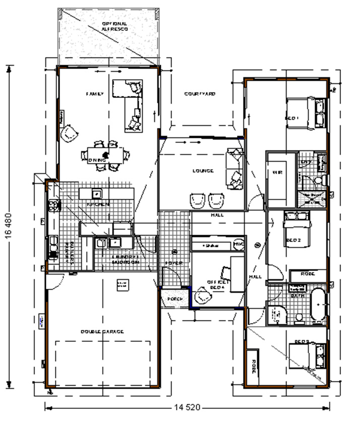
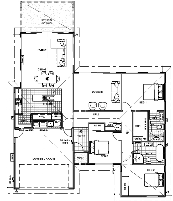
Cardrona 2.0 Hip
Cadrona Designed to Inspire, Built to Last
Designed to encompass a pod style home, the Cardrona features clean crisp lines to zone and compartmentalise the home. The foyer cleverly divides the home into two distinct living pods. Pod one features the sleeping zone with bedrooms, the main bathroom and a separate powder room, along with a luxurious master suite with a private entrance. To the right of the foyer is a massive open plan main living area that flows through a kitchen with butler pantry, double garage, and laundry/mudroom. This home is a must for those that like their space.
Sizes(sqm)
4
2
1
2
4
2
1
2
3
2
1
2




