Balmoral 2.0 Hip
Balmoral Timeless Elegance, Modern Comfort
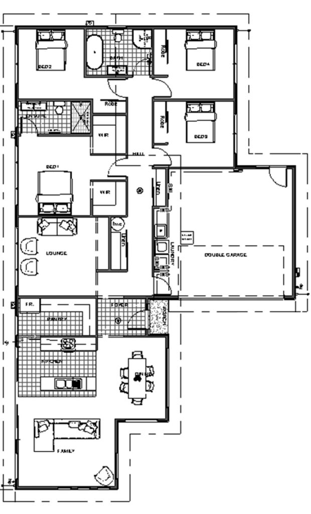
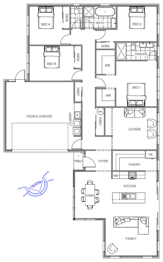
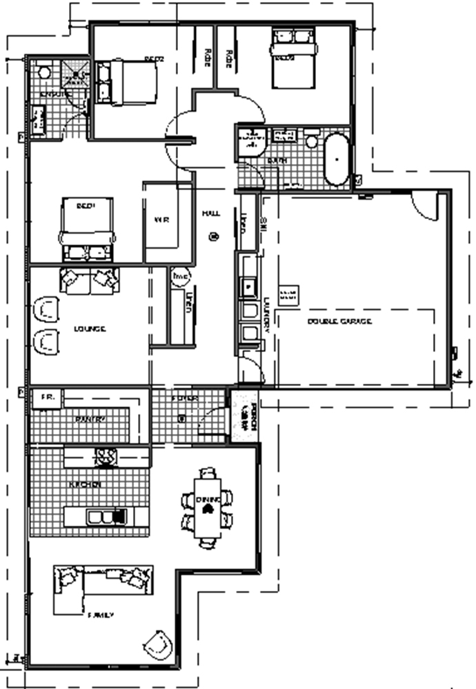
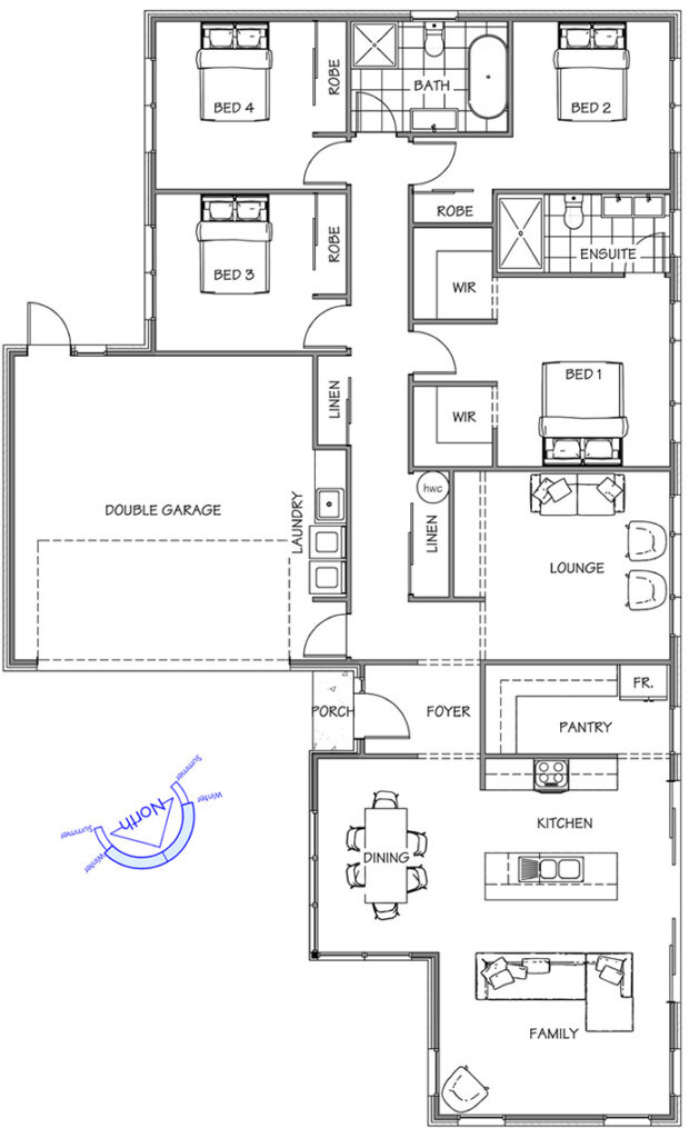
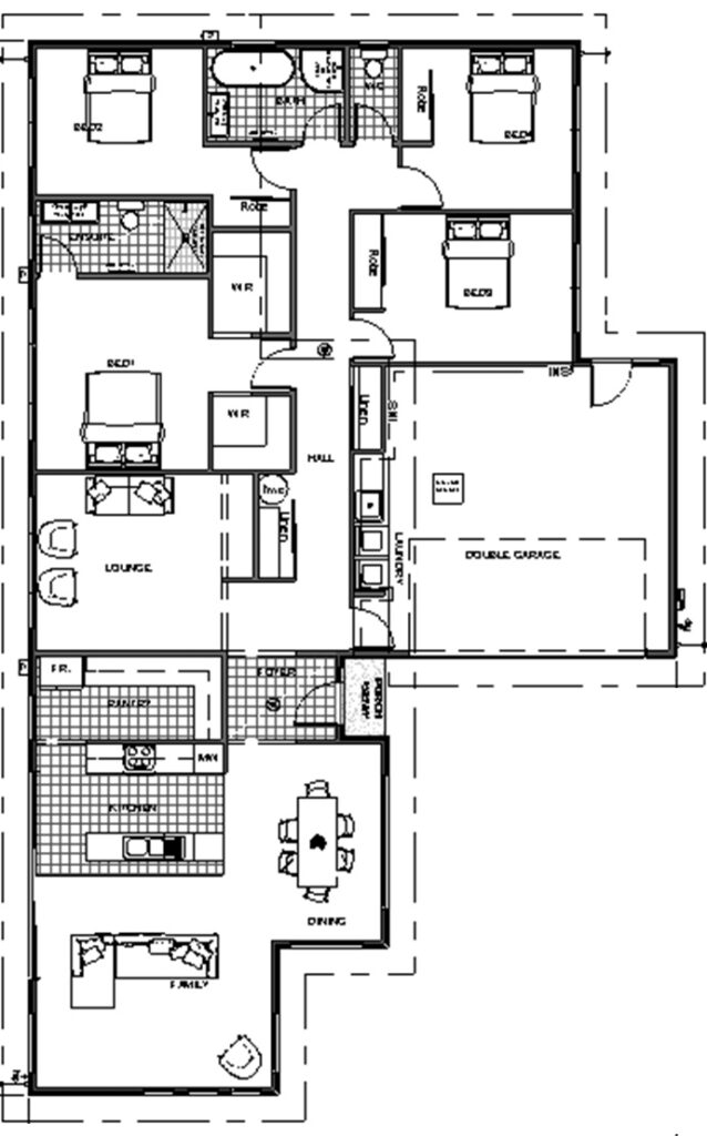
Featuring a classic Hip roof, the Balmoral 2.0 Hip offers enduring style and refined proportions. The well-zoned layout includes generous living areas, a luxurious master suite, and separate activity spaces, making it ideal for families who appreciate both functionality and elegance. The homeÃs seamless flow connects indoor comfort with outdoor relaxation.
Sizes(sqm)
4
2
1
2
4
2
1
2
3
2
1
2




