Balmoral 2.0 Gable
Balmoral Timeless Elegance, Modern Comfort
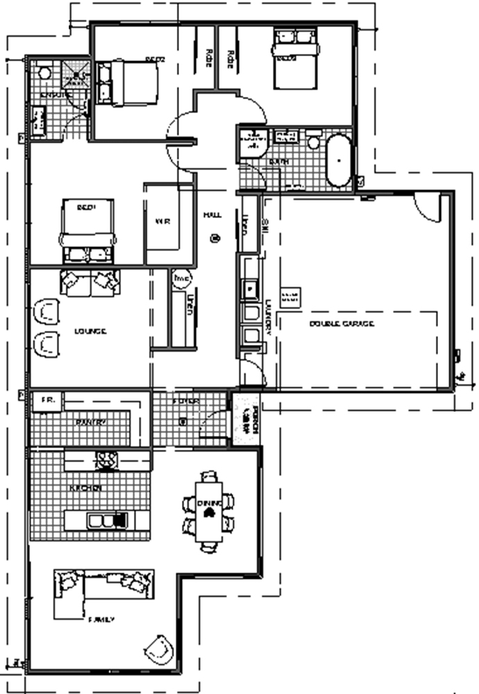
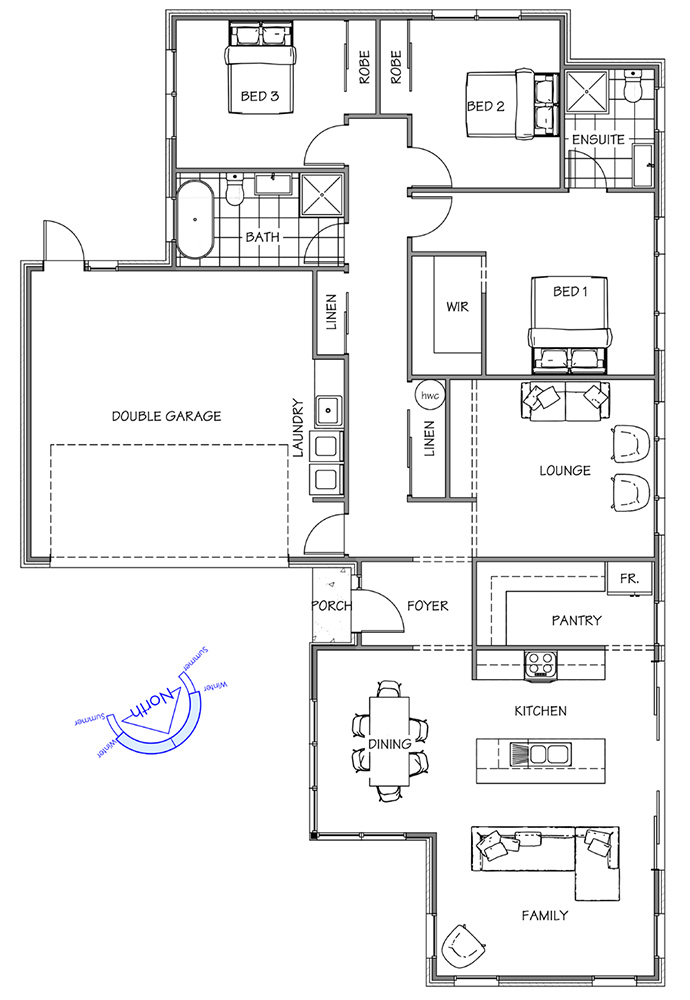
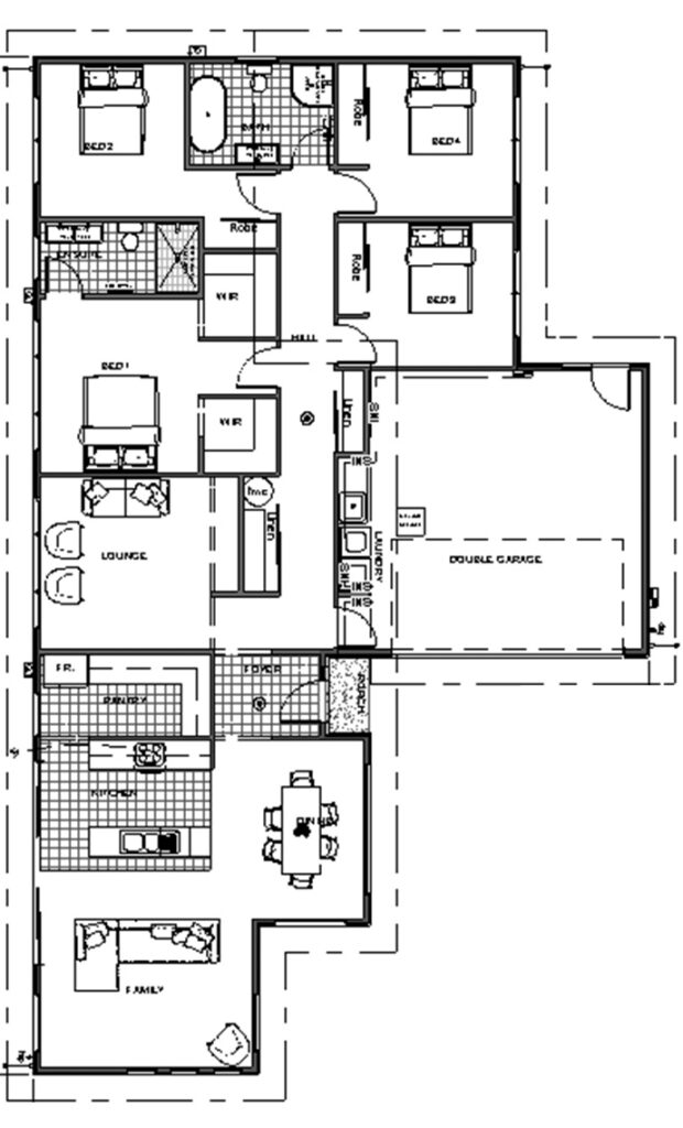
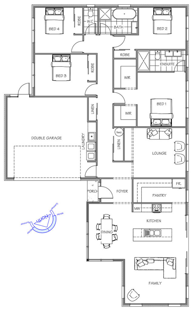
This Balmoral is designed to capture the natural light and warmth of the sun from a north-facing street frontage, with feature windows plenty! The home features a huge open-plan living area and a massive kitchen including a walk-in pantry, ensuring entertaining has never been more enjoyable. A large open-plan lounge divides the living and sleeping zones of this home.
Sizes(sqm)
4
2
1
2
4
2
1
2
3
2
1
2




