Avondale 2.0 Mono
Avondale Classic Style, Contemporary Living
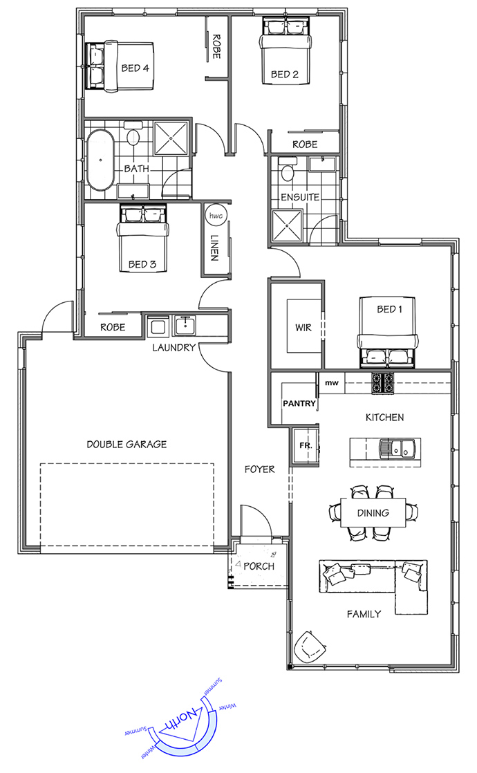
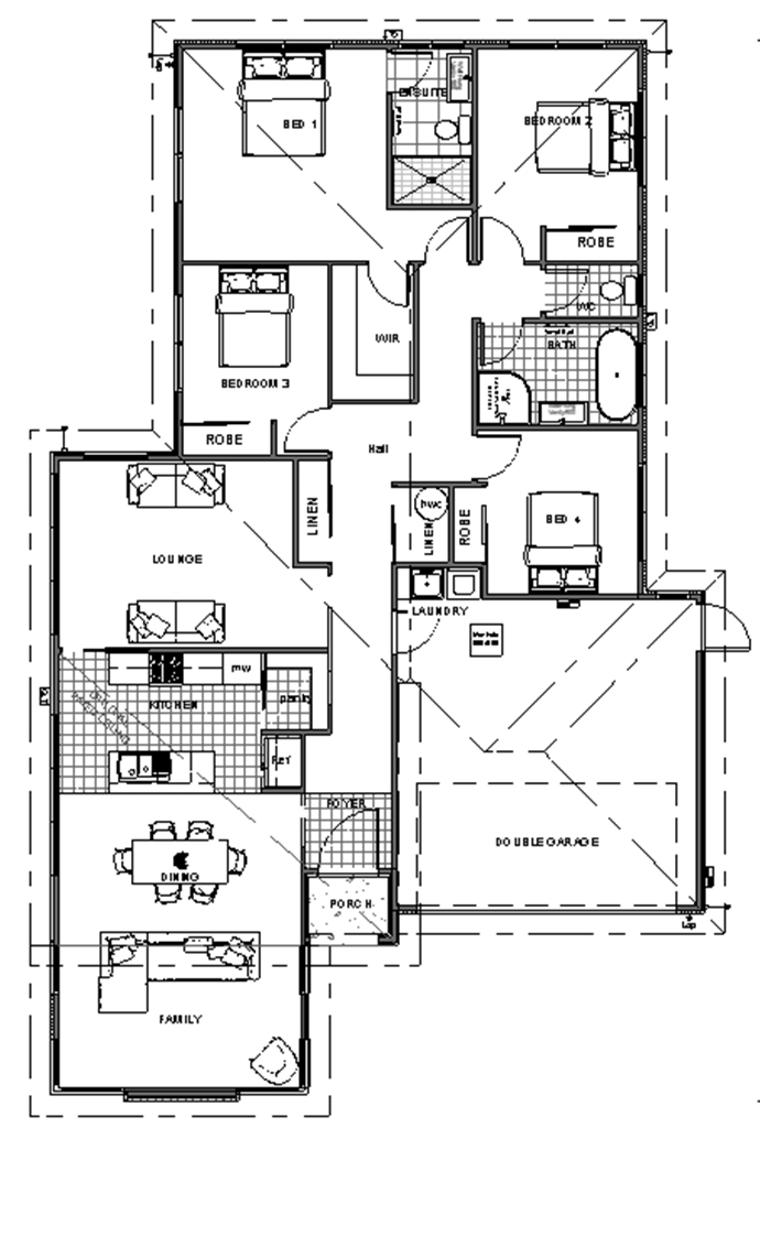
The kitchen is at the heart of this brilliantly thought-out family home, centred between the sun-soaked living areas. The generous master suite to the rear boast a spacious ensuite and walk-in wardrobe, while the remaining 3 bedrooms are well-served with a family-sized bathroom and separate toilet. Large format windows help capture natural light and bring the outside in.
Sizes(sqm)
4
2
1
2
4
2
1
2
4
2
1
2




