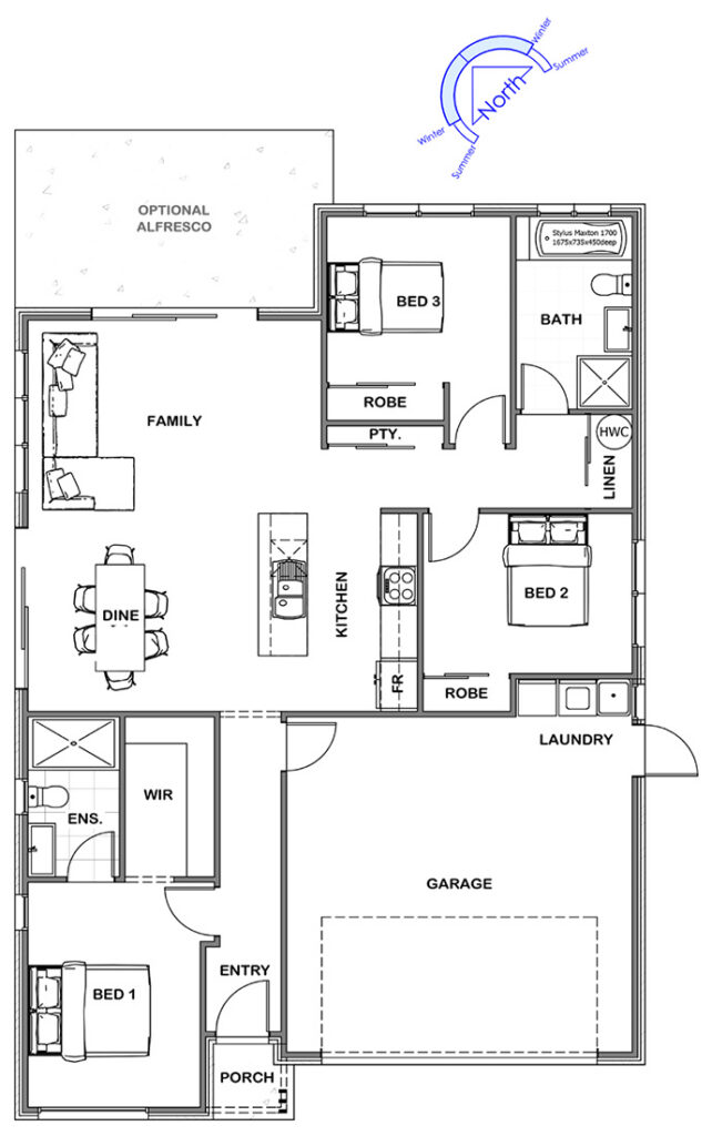
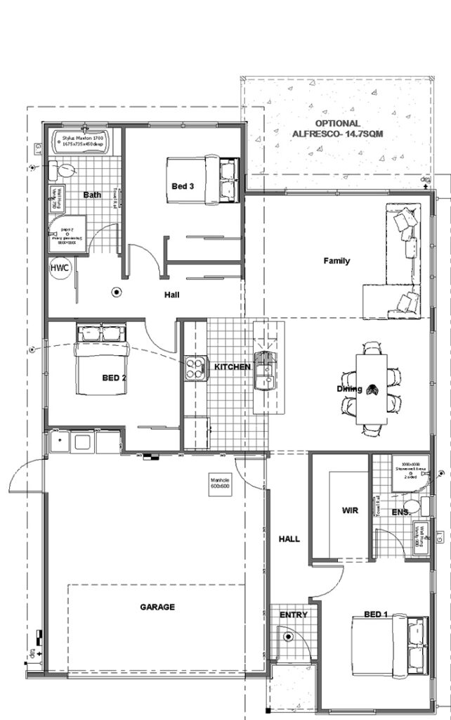
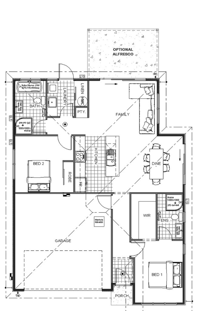
Avon 2.0 Hip
The Avon Designed for Family, Built for Life
This great value compact home utilises clean lines and efficient design to maximise the feeling of space within. Available in 3 - 4 bedroom options, Avon comes standard with beautiful open plan living areas, central kitchen, a double garage, and a generous master suite with all the trimmings. Bedrooms are serviced by a separate bathroom suitable for the whole family.
    Sizes(sqm)
    
                
        
                
        
                
        
            
    
                                                
                    
                                
            
            
                                                
                    
                                
            
            
                                                
                    
                                
            
            
        
    
                
                
                
                    
                    4                        
                
                
                                
                    
                    2     
                
                
                                
                    
                    1  
                
                
                                
                    
                    2  
                
                
            
                    
                    3                        
                
                
                                
                    
                    2     
                
                
                                
                    
                    1  
                
                
                                
                    
                    2  
                
                
            
                    
                    2                        
                
                
                                
                    
                    2     
                
                
                                
                    
                    1  
                
                
                                
                    
                    2  
                
                
            




 
                     
                                             
                                         
                                             
                                         
                                             
                                         
            