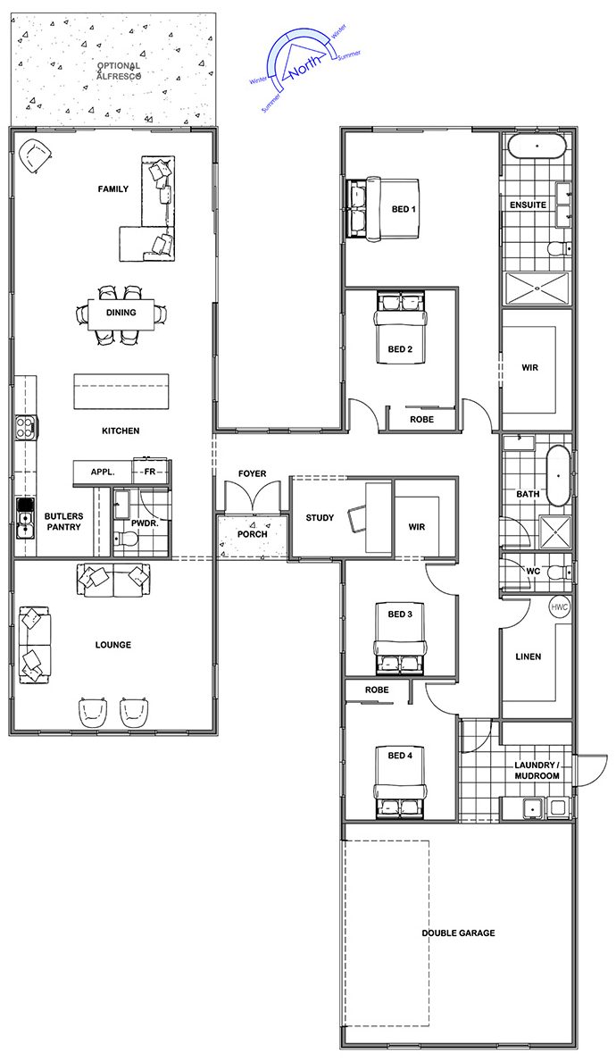
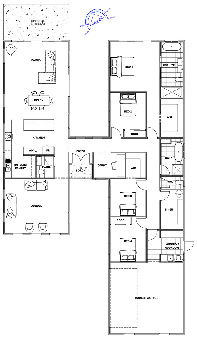
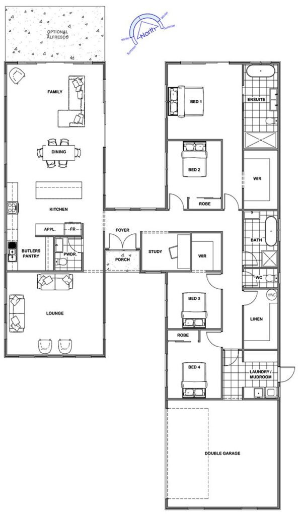
Pavillion 2.0 Gable
This home has been designed to stand out from the crowd and harness the beauty of natural light at every turn. With 2 separate wings, this design encapsulates privacy and luxury perfectly. See it for yourself.
4
3
2




