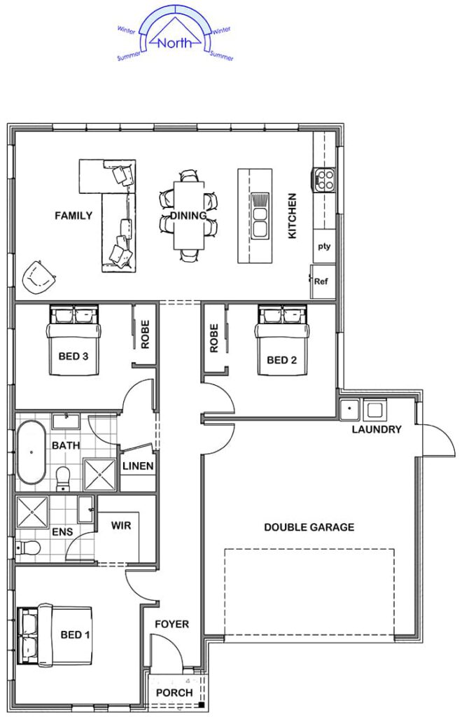
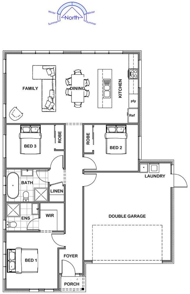
Waterview Hip
Waterview Balanced Elegance, Spacious Living
With its softly sloped Hip roof, the Waterview offers timeless street appeal. The interior plan focuses on seamless flow between living, dining, and kitchen zones, with direct access to outdoor living spaces. Bedrooms are thoughtfully zoned, with a master retreat that enjoys privacy and comfort.
Sizes(sqm)
3
2
1
2




