Island Bay Mono
Island Bay Classic Lines, Coastal Comfort
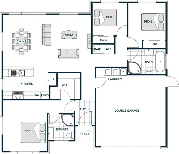
The Island Bay Mono stands out with its striking gable roofline, creating strong street appeal and architectural interest. The interior embraces natural light and open spaces, featuring a spacious open-plan living, dining, and kitchen area that opens to an alfresco, extending the living space outdoors. The master suite is a private retreat complete with an ensuite and walk-in robe, separated from the childrenÃs wing that includes multiple bedrooms, a shared bathroom, and an activity room. Perfect for families seeking a home with personality and functional living spaces, the Island Bay Mono balances bold design with everyday comfort.




