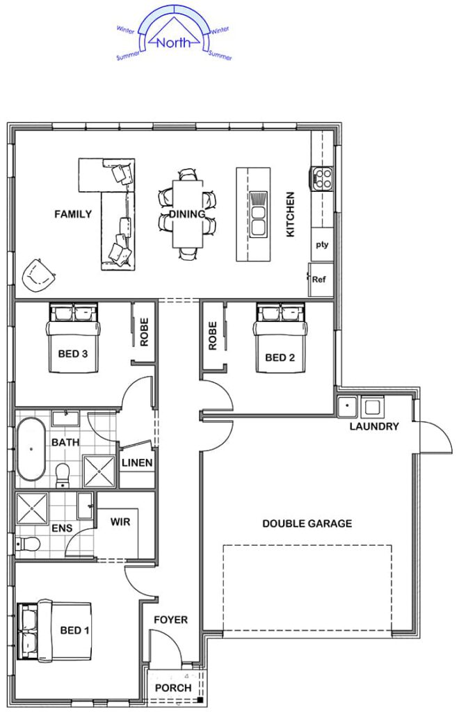
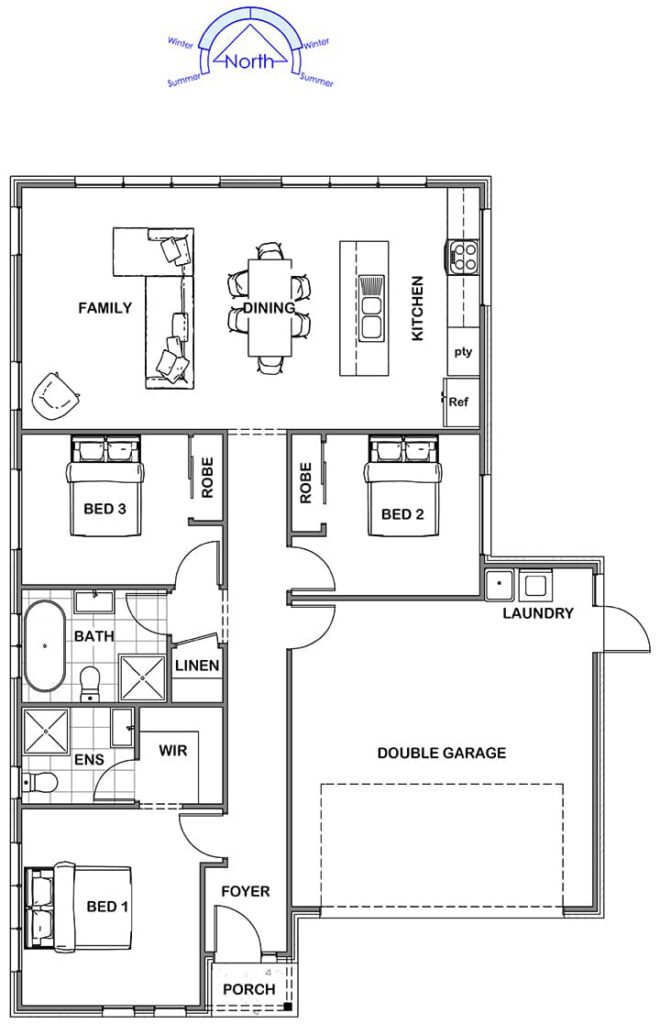
Waterview Gable
Waterview Balanced Elegance, Spacious Living
A striking and light filled family home is something we all desire, and the Waterview meets those expectations with ease. With three spacious bedrooms including the master suite to the front, and separate family bathroom, this family home caters for both privacy in space. The Open Plan main living zone to the rear is a real crowd pleaser with a large galley kitchen and loads of natural light making this space one to remember. With the practicality of a double garage, this modern family home sure to leave its mark.
Sizes(sqm)
3
2
1
2




