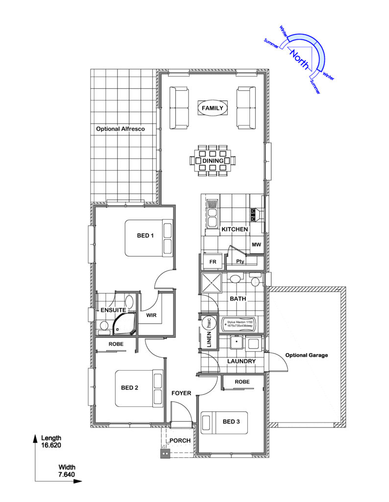
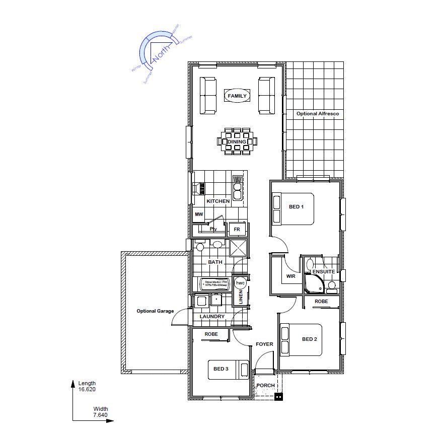
Totara 107 Gable 2.0
Totara Gable Stylish and Compact Living
The Totara 107 Gable is a stylish 107m home designed for compact sites, featuring a classic gable roofline that enhances street appeal. With a living area for entertaining and relaxation, two bathrooms, and an optional garage, this home offers flexibility and comfort. The open-plan layout maximises natural light, creating a spacious and inviting atmosphere. Ideal for small families, couples, or holiday home buyers, the Totara Gable offers customisable finishes to create a personalised retreat that blends style and practicality.
Sizes(sqm)
3
2
1
1




