Sutherland Hip
Sutherland Bright Spaces, Thoughtful Layouts
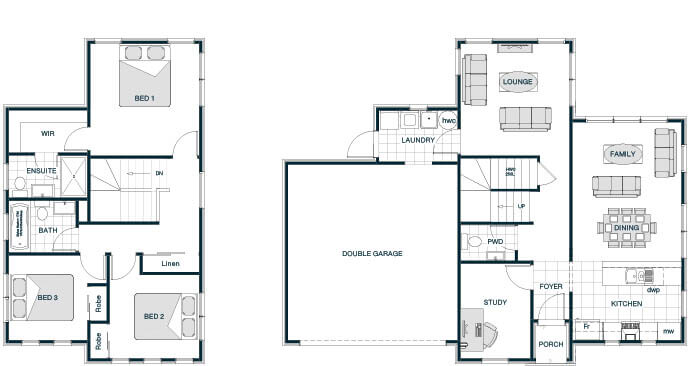
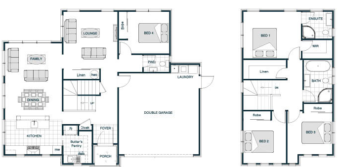
The Sutherland Hip Roof plan features a durable, four-sided roof that offers balanced proportions and a polished exterior look. The open-plan living area centers around a contemporary kitchen and connects effortlessly to dining and lounge spaces, creating a warm and inviting atmosphere. Three bedrooms, including a master with ensuite and walk-in robe, provide ample space for modern family life. The hip roof not only enhances weather protection but also adds timeless elegance.
Sizes(sqm)
4
3
2
2
4
2.5
2
2
4
2.5
2
2
3
2.5
2
2




