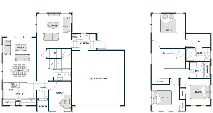
Sutherland Gable
Sutherland Bright Spaces, Thoughtful Layouts
With a classic pitched roof, the Sutherland Gable Roof plan combines timeless architectural appeal with modern living. Vaulted ceilings in the open-plan living zone add volume and character, while the well-designed kitchen, dining, and lounge spaces encourage seamless flow and connection. Three bedrooms, including a master suite with ensuite and walk-in robe, offer privacy and comfort. This design balances traditional charm with family-friendly functionality.
Sizes(sqm)
4
3
2
2
4
2.5
2
2
4
2.5
2
2
3
2.5
2
2




