Riviere Mono
Riviere Clean Lines, Cozy Vibes
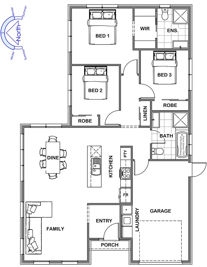
The clean slope of the Mono roof gives Riviere a contemporary edge. Inside, the entrance leads into a generous main living area where natural light cascades in. A galley-style kitchen sits just off this central space. Three bedrooms including a spacious rear master suite with ensuite and walk-in robes are zoned thoughtfully down the corridor, positioning daily life around a bright communal hub.
Sizes(sqm)
3
2
1
1




