Riviere Hip
Riviere Clean Lines, Cozy Vibes
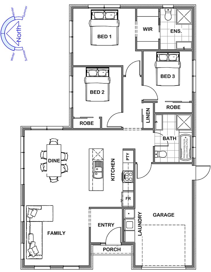
A balanced Hip roof lends warmth and proportional charm to Riviereís faÁade. The front foyer opens into a welcoming living area bathed in light, anchored by a functional kitchen. Bedrooms are grouped quietly at the back, with the master suite offering its own retreat. The central living zone creates a natural heart for family moments and daily ease.
Sizes(sqm)
3
2
1
1




