Riviere Gable
Riviere Clean Lines, Cozy Vibes
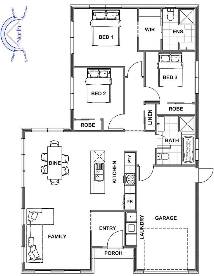
From the grand foyer to the captivating main living area, as soon as you enter this home light in space are clearly evident. With three bedrooms to the rear of this family home including a generous master suite with its own ensuite and walk-in wardrobe, as well as family bathroom, to the main living area is perfectly placed provide the balance privacy and functionality, this is a home that connects family and home together.
Sizes(sqm)
3
2
1
1



