Richmond Bay Hip
Richmond Bay Spacious Interiors, Elegant Exteriors
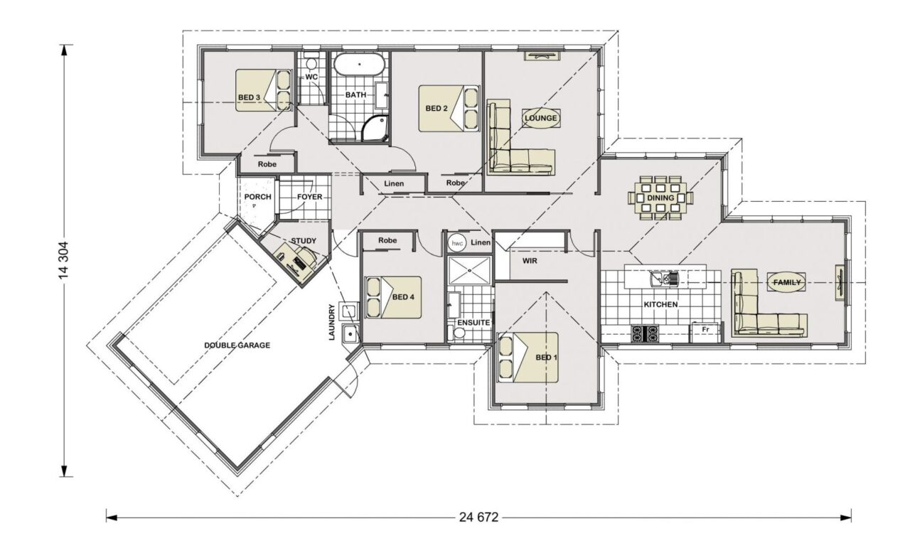
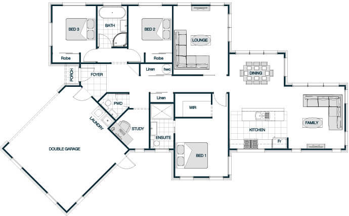
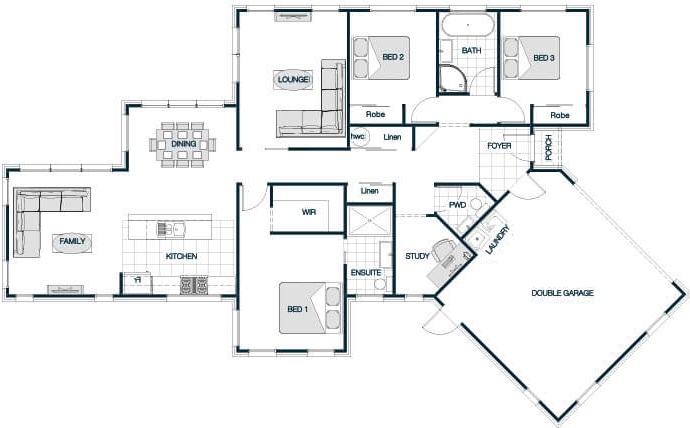
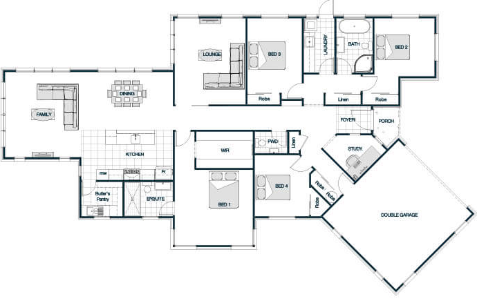
The Richmond Bay Hip Roof plan combines durability and elegance with its four-sided roof design. This layout provides a balanced and symmetrical appearance, contributing to the home's timeless appeal. The open-plan living area serves as the heart of the home, connecting the kitchen, dining, and lounge spaces in a harmonious flow. With bedrooms, including a master suite with an ensuite bathroom, the design caters to modern family living. The hip roof offers excellent protection against the elements and adds a refined touch to the home's overall aesthetic.
Sizes(sqm)
4
2.5
1
2
4
2
1
2
4
2
1
2
3
2
1
2




